Ref : 1412176-0L
Location Local d'activités
Location Local d'Activités indépendant - Chassieu (69680) - 500 m²
Chassieu (69680)
Loyer : 48 000 € / an
Surface 500 m²
Description du bien
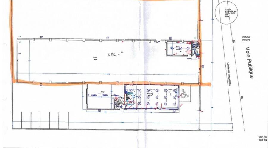
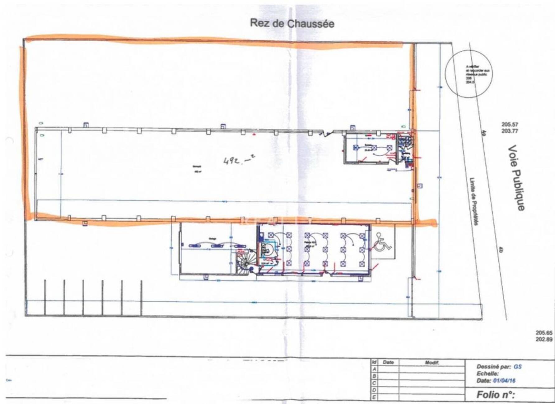
MALSH Realty vous propose à la location au coeur de la ZI Mi-Plaine à Chassieu, sur un terrain indépendant et clos, un bâtiment d'activités d'une surface totale d'environ 500 m² avec un bureau et sanitaire. Ce local est équipé d'une porte sectionnelle motorisée et bénéficie d'un terrain d'environ 500 m² pour stockage et parkings.
Disponible immédiatement !
Prestations du bien
- Accès de plain-pied
- Porte sectionnelle automatique (4,5 m x 3,9 m)
- Extérieur indépendant
- Terrain d'environ 500 m² pour stockage et parkings
- Entrepôt
- 6 m de hauteur sous charpente
- Triphasé possible
- Pont roulant possible
- Espace bureaux
- Sanitaire et douche
- Immeuble indépendant
Informations financières
- Bail : commercial 3-6-9 ans
- Informations location :
Conditions particulières à la location : Frais d'état des lieux : 350 euros HT
Frais de rédaction de bail : 750 euros HT - Dépôt de garantie : 3 mois de loyer HT/HC
Ce local professionnel vous est présenté par
Vous souhaitez nous joindre ?
Surfaces des locaux
| Étage | Bâtiment | Type | Surfaces | Disponibilité | Loyer | Charges | Honoraires | Fiscal | Bail | Révision annuelle | Prix | Charges | Honoraires | Fiscal | Paiement Loyer | lot | Coworking | |
|---|---|---|---|---|---|---|---|---|---|---|---|---|---|---|---|---|---|---|
| Terrain | 500 | 20 % HT du loyer annuel HT/HC, à la charge du Preneur, payables à la signature du bail | T.V.A. (20%) | ILAT Indice des Loyers des Activités Tertiaires | Trimestriel d'avance | |||||||||||||
| RDC | Activités | 500 | 20 % HT du loyer annuel HT/HC, à la charge du Preneur, payables à la signature du bail | T.V.A. (20%) | ILAT Indice des Loyers des Activités Tertiaires | Trimestriel d'avance | ||||||||||||
| Total Cellule | Activités | 500 | Immédiate | 96 HT/HC/m²/an | 20 % HT du loyer annuel HT/HC, à la charge du Preneur, payables à la signature du bail | T.V.A. (20%) | commercial 3-6-9 ans | ILAT Indice des Loyers des Activités Tertiaires | Trimestriel d'avance | |||||||||
| Total | 1 000 m² |
Localisation et accessibilité
- Bus: Bus TCL lignes 76 et Zi5 en face du site
- Autoroute: A 3 min des autoroutes A43 et A46 (Rocade Est)
Ces biens pourraient vous intéresser
| Étage | Bâtiment | Type | Surfaces | Disponibilité | Loyer | Charges | Honoraires | Fiscal | Bail | Révision annuelle | Prix | Charges | Honoraires | Fiscal | Paiement Loyer | lot | Coworking | |
|---|---|---|---|---|---|---|---|---|---|---|---|---|---|---|---|---|---|---|
| Terrain | 500 | 20 % HT du loyer annuel HT/HC, à la charge du Preneur, payables à la signature du bail | T.V.A. (20%) | ILAT Indice des Loyers des Activités Tertiaires | Trimestriel d'avance | |||||||||||||
| RDC | Activités | 500 | 20 % HT du loyer annuel HT/HC, à la charge du Preneur, payables à la signature du bail | T.V.A. (20%) | ILAT Indice des Loyers des Activités Tertiaires | Trimestriel d'avance | ||||||||||||
| Total Cellule | Activités | 500 | Immédiate | 96 HT/HC/m²/an | 20 % HT du loyer annuel HT/HC, à la charge du Preneur, payables à la signature du bail | T.V.A. (20%) | commercial 3-6-9 ans | ILAT Indice des Loyers des Activités Tertiaires | Trimestriel d'avance | |||||||||
| Total | 1 000 m² |






























