Ref : 1232208-0L
Location Local d'activités
Location Locaux d'Activités à partir de 272 m² et Bureaux de 54 m² - Reyrieux (01600)
Reyrieux (01600)
Loyer : 199 020 € / an
Surface 3 063 m²
Divisible dès 54 m²
Description du bien
MALSH Realty vous propose à la location au sein du Village Entreprises Dombes Saône Vallée à Reyrieux, plusieurs lots d'activités de plain-pied à partir de 272 m² et un lot de bureaux de 54 m² en RDC.
Excellente visibilité sur la RD28.
Disponibilité immédiate !
Prestations du bien
- Accès de plain-pied / Accès semi
- Porte sectionnelle (3,50 m x 3,50 m)
- Compteurs électrique et eau individuels
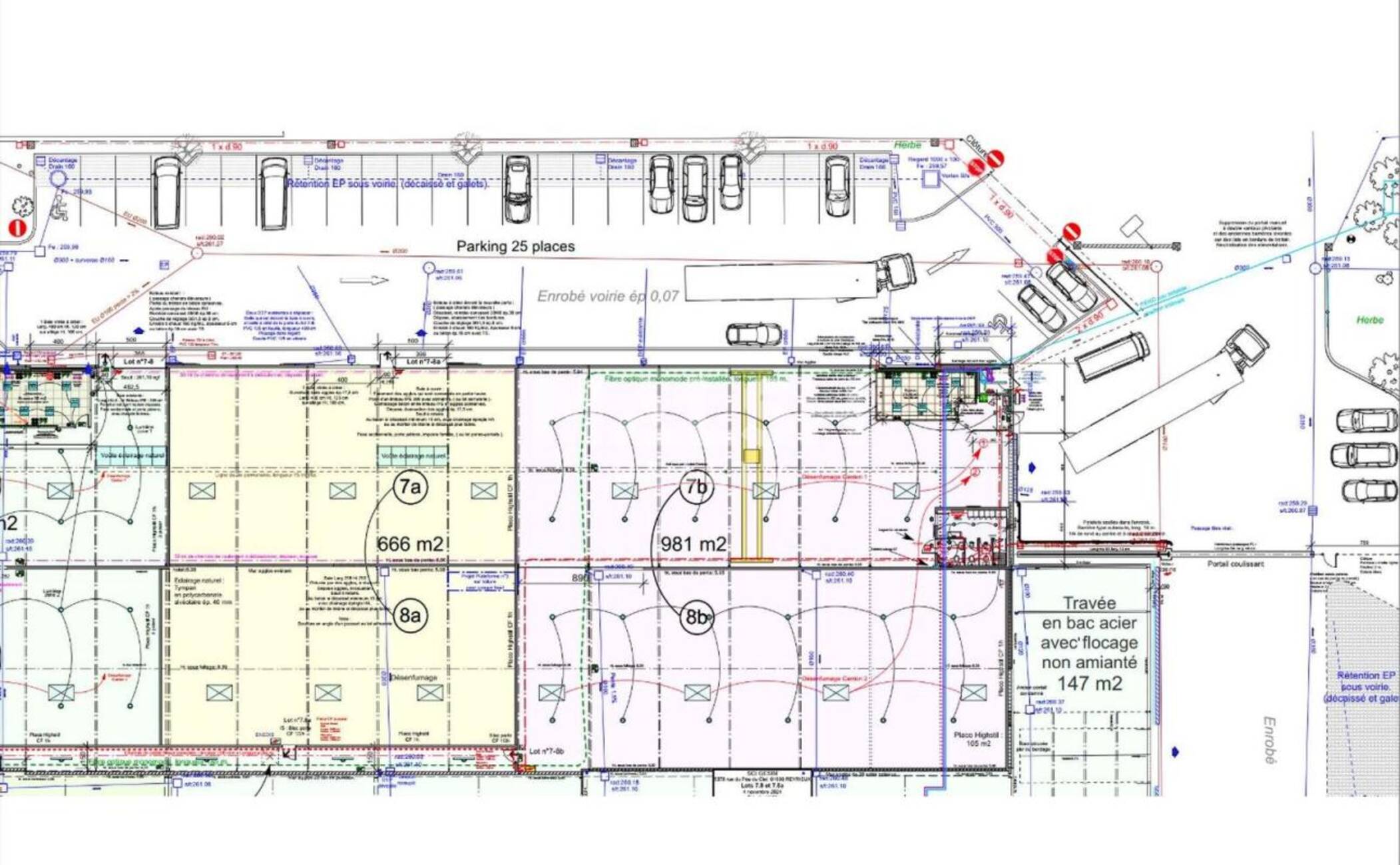
- Parkings extérieurs
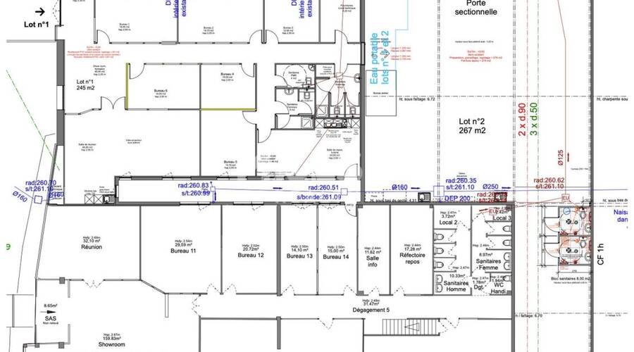
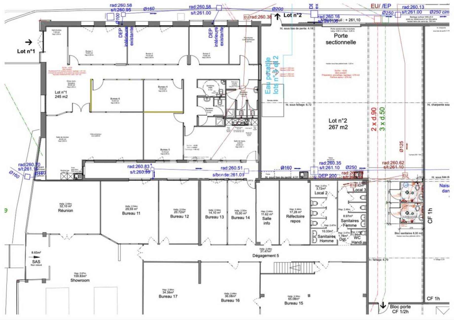
- Lot 2 :
- Atelier isolé et chauffé par aérothermes gaz (chaudière commune à gaz, compteurs individuels)
- Bureaux : Bungalow
- Sanitaires
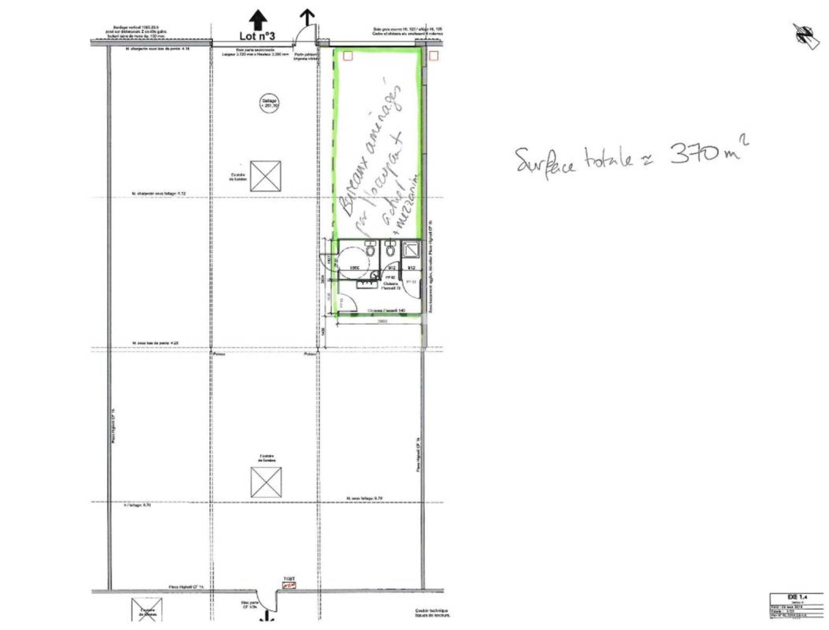
- Lot 3 :
- Bureaux et Sanitaires aménagés
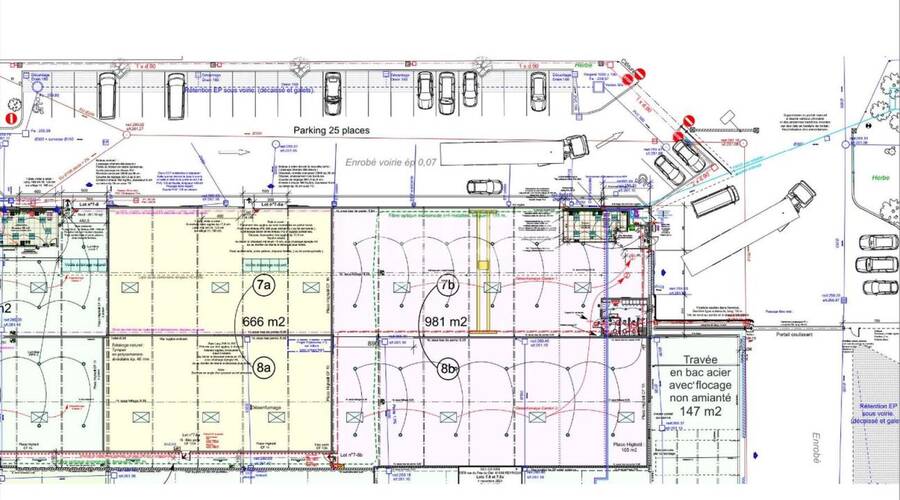
- Lots 7a+8a :
- Bureaux à créer
- Sanitaires
Informations financières
- Charges minimales : 333 €
- Bail : commercial 3-6-9 ans
- Informations location :
Conditions particulières à la location : Les charges comprennent l'entretien des parties communes, la consommation des communs, l'eau, et le chauffage de l'atelier
Frais de dossier : 150 euros HT
- Dépôt de garantie : 3 mois de loyer HT/HC
- Honoraires de commercialisation : 20 % HT du loyer annuel HT à la charge du preneur, payables à la signature du bail
Ce local professionnel vous est présenté par
Vous souhaitez nous joindre ?
Surfaces des locaux
| Étage | Bâtiment | Type | Surfaces | Disponibilité | Loyer | Charges | Honoraires | Fiscal | Bail | Révision annuelle | Prix | Charges | Honoraires | Fiscal | Paiement Loyer | lot | Coworking | |
|---|---|---|---|---|---|---|---|---|---|---|---|---|---|---|---|---|---|---|
| RDC | Activités | 272 | 20 % HT du loyer annuel HT à la charge du preneur, payables à la signature du bail | T.V.A. (20%) | ILAT Indice des Loyers des Activités Tertiaires | Trimestriel d'avance | ||||||||||||
| Total Cellule 2 | Activités | 272 | Immédiate | 95,59 HT/HC/m²/an | 1 500 HT/an | 20 % HT du loyer annuel HT à la charge du preneur, payables à la signature du bail | T.V.A. (20%) | commercial 3-6-9 ans | ILAT Indice des Loyers des Activités Tertiaires | Trimestriel d'avance | 2 | |||||||
| RDC | Activités | 370 | 20 % HT du loyer annuel HT à la charge du preneur, payables à la signature du bail | T.V.A. (20%) | ILAT Indice des Loyers des Activités Tertiaires | Trimestriel d'avance | ||||||||||||
| Total Cellule 3 | Activités | 370 | Immédiate | 67,57 HT/HC/m²/an | 1 800 HT/an | 20 % HT du loyer annuel HT à la charge du preneur, payables à la signature du bail | T.V.A. (20%) | commercial 3-6-9 ans | ILAT Indice des Loyers des Activités Tertiaires | Trimestriel d'avance | 3 | |||||||
| RDC | Activités | 666 | 20 % HT du loyer annuel HT à la charge du preneur, payables à la signature du bail | T.V.A. (20%) | ILAT Indice des Loyers des Activités Tertiaires | Trimestriel d'avance | ||||||||||||
| Total Cellule 7a+8a | Activités | 666 | Immédiate | 52,55 HT/HC/m²/an | 3 000 HT/an | 20 % HT du loyer annuel HT à la charge du preneur, payables à la signature du bail | T.V.A. (20%) | commercial 3-6-9 ans | ILAT Indice des Loyers des Activités Tertiaires | Trimestriel d'avance | 7a+8a | |||||||
| RDC | Activités | 944 | 20 % HT du loyer annuel HT à la charge du preneur, payables à la signature du bail | T.V.A. (20%) | ILAT Indice des Loyers des Activités Tertiaires | Trimestriel d'avance | ||||||||||||
| RDC | Bureaux | 23,2 | 20 % HT du loyer annuel HT à la charge du preneur, payables à la signature du bail | T.V.A. (20%) | ILAT Indice des Loyers des Activités Tertiaires | Trimestriel d'avance | ||||||||||||
| RDC | Sanitaires | 14 | 20 % HT du loyer annuel HT à la charge du preneur, payables à la signature du bail | T.V.A. (20%) | ILAT Indice des Loyers des Activités Tertiaires | Trimestriel d'avance | ||||||||||||
| Total Cellule 7b+8b | Activités | 981,2 | Immédiate | 63,7 HT/HC/m²/an | 4 000 HT/an | 20 % HT du loyer annuel HT à la charge du preneur, payables à la signature du bail | T.V.A. (20%) | commercial 3-6-9 ans | ILAT Indice des Loyers des Activités Tertiaires | Trimestriel d'avance | 7b+8b | |||||||
| RDC | Activités | 537 | 20 % HT du loyer annuel HT à la charge du preneur, payables à la signature du bail | T.V.A. (20%) | ILAT Indice des Loyers des Activités Tertiaires | Trimestriel d'avance | ||||||||||||
| RDC | Bureaux | 183 | 20 % HT du loyer annuel HT à la charge du preneur, payables à la signature du bail | T.V.A. (20%) | ILAT Indice des Loyers des Activités Tertiaires | Trimestriel d'avance | ||||||||||||
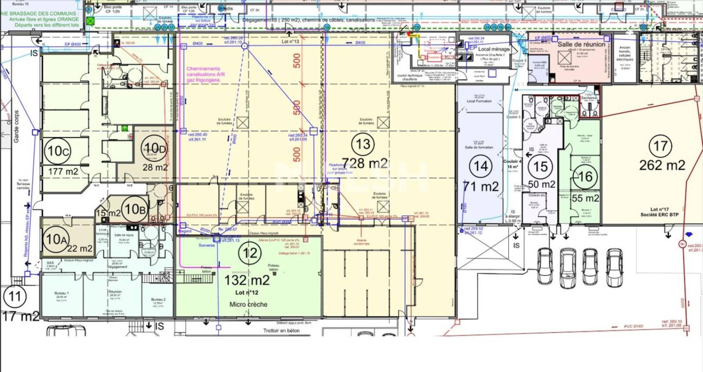
| Total Cellule 13 | Activités | 720 | Immédiate | 65,28 HT/HC/m²/an | 3 300 HT/an | 20 % HT du loyer annuel HT à la charge du preneur, payables à la signature du bail | T.V.A. (20%) | commercial 3-6-9 ans | ILAT Indice des Loyers des Activités Tertiaires | Trimestriel d'avance | 13 | |||||||
| RDC | Bureaux | 54 | 20 % HT du loyer annuel HT à la charge du preneur, payables à la signature du bail | T.V.A. (20%) | ILAT Indice des Loyers des Activités Tertiaires | Trimestriel d'avance | ||||||||||||
| Total Cellule 16 | Bureaux | 54 | Immédiate | 120,37 HT/HC/m²/an | 760 HT/an | 20 % HT du loyer annuel HT à la charge du preneur, payables à la signature du bail | T.V.A. (20%) | commercial 3-6-9 ans | ILAT Indice des Loyers des Activités Tertiaires | Trimestriel d'avance | 16 | |||||||
| Total | 3 063,2 m² |
Localisation et accessibilité
Ces biens pourraient vous intéresser
Ces articles peuvent vous intéresser
| Étage | Bâtiment | Type | Surfaces | Disponibilité | Loyer | Charges | Honoraires | Fiscal | Bail | Révision annuelle | Prix | Charges | Honoraires | Fiscal | Paiement Loyer | lot | Coworking | |
|---|---|---|---|---|---|---|---|---|---|---|---|---|---|---|---|---|---|---|
| RDC | Activités | 272 | 20 % HT du loyer annuel HT à la charge du preneur, payables à la signature du bail | T.V.A. (20%) | ILAT Indice des Loyers des Activités Tertiaires | Trimestriel d'avance | ||||||||||||
| Total Cellule 2 | Activités | 272 | Immédiate | 95,59 HT/HC/m²/an | 1 500 HT/an | 20 % HT du loyer annuel HT à la charge du preneur, payables à la signature du bail | T.V.A. (20%) | commercial 3-6-9 ans | ILAT Indice des Loyers des Activités Tertiaires | Trimestriel d'avance | 2 | |||||||
| RDC | Activités | 370 | 20 % HT du loyer annuel HT à la charge du preneur, payables à la signature du bail | T.V.A. (20%) | ILAT Indice des Loyers des Activités Tertiaires | Trimestriel d'avance | ||||||||||||
| Total Cellule 3 | Activités | 370 | Immédiate | 67,57 HT/HC/m²/an | 1 800 HT/an | 20 % HT du loyer annuel HT à la charge du preneur, payables à la signature du bail | T.V.A. (20%) | commercial 3-6-9 ans | ILAT Indice des Loyers des Activités Tertiaires | Trimestriel d'avance | 3 | |||||||
| RDC | Activités | 666 | 20 % HT du loyer annuel HT à la charge du preneur, payables à la signature du bail | T.V.A. (20%) | ILAT Indice des Loyers des Activités Tertiaires | Trimestriel d'avance | ||||||||||||
| Total Cellule 7a+8a | Activités | 666 | Immédiate | 52,55 HT/HC/m²/an | 3 000 HT/an | 20 % HT du loyer annuel HT à la charge du preneur, payables à la signature du bail | T.V.A. (20%) | commercial 3-6-9 ans | ILAT Indice des Loyers des Activités Tertiaires | Trimestriel d'avance | 7a+8a | |||||||
| RDC | Activités | 944 | 20 % HT du loyer annuel HT à la charge du preneur, payables à la signature du bail | T.V.A. (20%) | ILAT Indice des Loyers des Activités Tertiaires | Trimestriel d'avance | ||||||||||||
| RDC | Bureaux | 23,2 | 20 % HT du loyer annuel HT à la charge du preneur, payables à la signature du bail | T.V.A. (20%) | ILAT Indice des Loyers des Activités Tertiaires | Trimestriel d'avance | ||||||||||||
| RDC | Sanitaires | 14 | 20 % HT du loyer annuel HT à la charge du preneur, payables à la signature du bail | T.V.A. (20%) | ILAT Indice des Loyers des Activités Tertiaires | Trimestriel d'avance | ||||||||||||
| Total Cellule 7b+8b | Activités | 981,2 | Immédiate | 63,7 HT/HC/m²/an | 4 000 HT/an | 20 % HT du loyer annuel HT à la charge du preneur, payables à la signature du bail | T.V.A. (20%) | commercial 3-6-9 ans | ILAT Indice des Loyers des Activités Tertiaires | Trimestriel d'avance | 7b+8b | |||||||
| RDC | Activités | 537 | 20 % HT du loyer annuel HT à la charge du preneur, payables à la signature du bail | T.V.A. (20%) | ILAT Indice des Loyers des Activités Tertiaires | Trimestriel d'avance | ||||||||||||
| RDC | Bureaux | 183 | 20 % HT du loyer annuel HT à la charge du preneur, payables à la signature du bail | T.V.A. (20%) | ILAT Indice des Loyers des Activités Tertiaires | Trimestriel d'avance | ||||||||||||
| Total Cellule 13 | Activités | 720 | Immédiate | 65,28 HT/HC/m²/an | 3 300 HT/an | 20 % HT du loyer annuel HT à la charge du preneur, payables à la signature du bail | T.V.A. (20%) | commercial 3-6-9 ans | ILAT Indice des Loyers des Activités Tertiaires | Trimestriel d'avance | 13 | |||||||
| RDC | Bureaux | 54 | 20 % HT du loyer annuel HT à la charge du preneur, payables à la signature du bail | T.V.A. (20%) | ILAT Indice des Loyers des Activités Tertiaires | Trimestriel d'avance | ||||||||||||
| Total Cellule 16 | Bureaux | 54 | Immédiate | 120,37 HT/HC/m²/an | 760 HT/an | 20 % HT du loyer annuel HT à la charge du preneur, payables à la signature du bail | T.V.A. (20%) | commercial 3-6-9 ans | ILAT Indice des Loyers des Activités Tertiaires | Trimestriel d'avance | 16 | |||||||
| Total | 3 063,2 m² |



















































