Ref : 2127055-0L
Location Bureau
Bureaux - A louer - Lyon 2 - 453 m²
Lyon 2 (69002)
Loyer : 90 720 € / an
Surface 453 m²
Description du bien
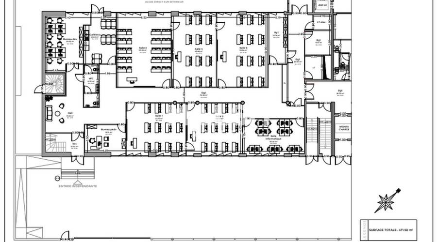
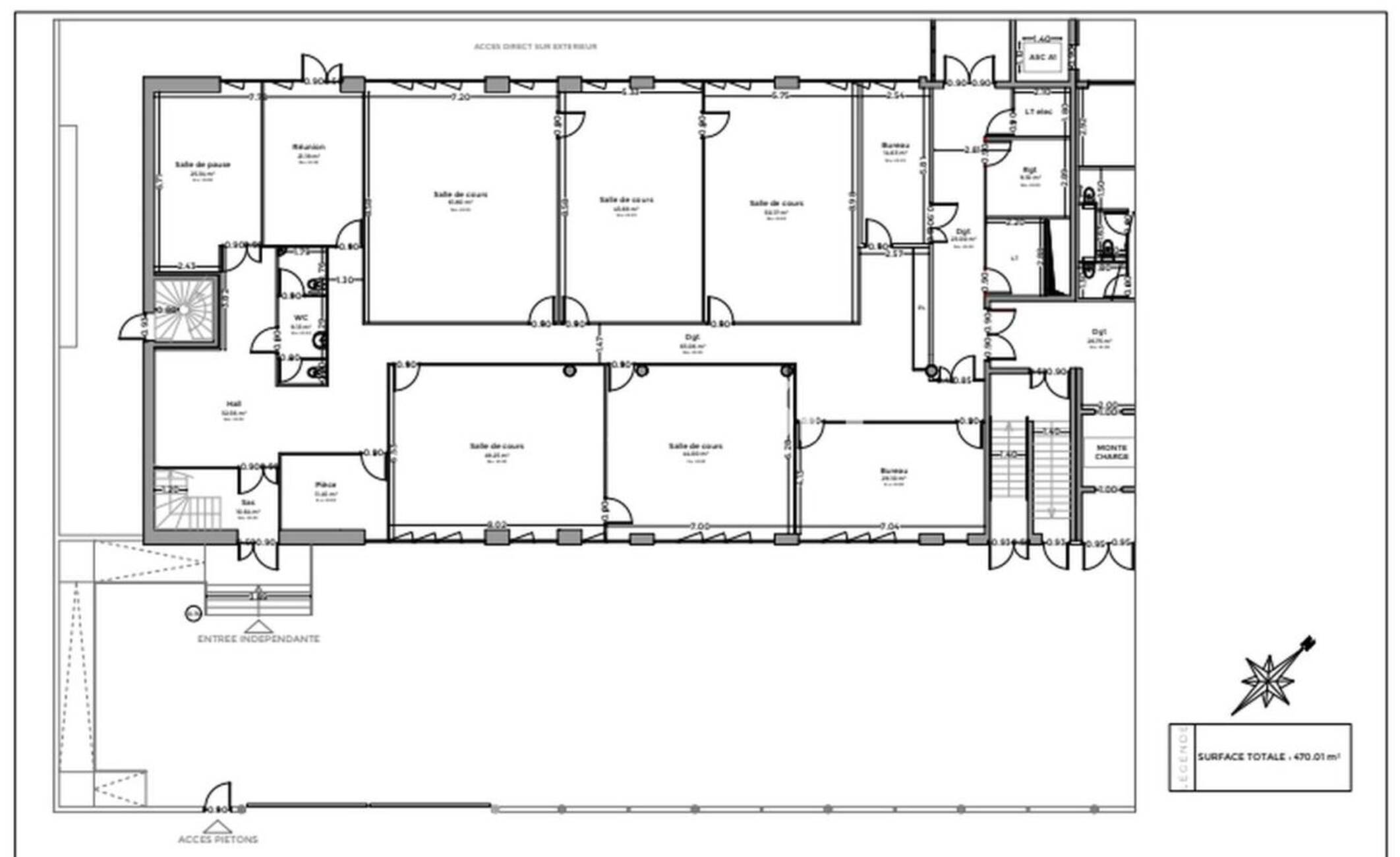
MALSH Realty vous propose 453 m² de bureaux, idéalement adaptés à une école ou un centre de formation grâce à leur classement en établissement recevant du public (ERP) et leur accessibilité PMR, mais convenant également à toute autre activité tertiaire. Situés dans le quartier moderne de Confluence, à proximité immédiate des tramways T1 et T2, ces bureaux se trouvent dans un bâtiment tertiaire sécurisé, entièrement équipés et bénéficient de 1 place de stationnement.
Prestations du bien
- Composition :
- 6 Salles de cours
- 3 Grands bureaux
- 1 Cafétéria
- 1 Espace détente
- 1 Hall d'entrée / accueil
- 1 Terrasse privative
- 1 Local d'archive
- 1 Local technique
- 2 Sanitaires dont un PMR
- Prestations :
- Immeuble tertiaire sécurisé
- ERP 5 (3eme catégorie possible)
- Accessibilité PMR
- Bureaux cloisonnés
- Climatisation réversible
- Faux plafond
- Luminaire encastré
- Fenêtre doubles vitrages
- Câblage RJ45 et fibre optique
- Baie de brassage
- Terrasse privative
Informations financières
- Charges minimales : 979 €
- Bail : commercial 3-6-9 ans
- Informations location :
Conditions particulières à la location : Inclus dans les charges : IF, TEOM, entretien communs, électricité, climatisation et eau
- Dépôt de garantie : 3 mois de loyer HT/HC
Ce local professionnel vous est présenté par
Vous souhaitez nous joindre ?
Surfaces des locaux
| Étage | Bâtiment | Type | Surfaces | Disponibilité | Loyer | Charges | Honoraires | Fiscal | Bail | Révision annuelle | Prix | Charges | Honoraires | Fiscal | Paiement Loyer | lot | Coworking | |
|---|---|---|---|---|---|---|---|---|---|---|---|---|---|---|---|---|---|---|
| RDC | Bureaux | 453 | Immédiate | 200,25 HT/HC/m²/an | 11 839,68 HT/An | 20 % HT du loyer annuel HT à la charge du preneur, payables à la signature du bail | T.V.A. (20%) | commercial 3-6-9 ans | ILAT Indice des Loyers des Activités Tertiaires | Trimestriel d'avance | ||||||||
| Sous-Sol | Parkings | - | Immédiate | 1 872 HT/HC/place/an | 20 % HT du loyer annuel HT à la charge du preneur, payables à la signature du bail | T.V.A. (20%) | commercial 3-6-9 ans | ILAT Indice des Loyers des Activités Tertiaires | Trimestriel d'avance | |||||||||
| Total | 453 m² | |||||||||||||||||
| 1 | ||||||||||||||||||
Localisation et accessibilité
- Bus: Bus TCL lignes C19, 8, 63 et S1
- SCNF: Gare de Lyon-Perrache à proximité immédiate
- Tramway: Tramway ligne T1 et T2 station "Hôtel Région Montrochet"
- Autoroute: A proximité immédiate de l'autoroute A6 et A7
Ces biens pourraient vous intéresser
Ces articles peuvent vous intéresser
| Étage | Bâtiment | Type | Surfaces | Disponibilité | Loyer | Charges | Honoraires | Fiscal | Bail | Révision annuelle | Prix | Charges | Honoraires | Fiscal | Paiement Loyer | lot | Coworking | |
|---|---|---|---|---|---|---|---|---|---|---|---|---|---|---|---|---|---|---|
| RDC | Bureaux | 453 | Immédiate | 200,25 HT/HC/m²/an | 11 839,68 HT/An | 20 % HT du loyer annuel HT à la charge du preneur, payables à la signature du bail | T.V.A. (20%) | commercial 3-6-9 ans | ILAT Indice des Loyers des Activités Tertiaires | Trimestriel d'avance | ||||||||
| Sous-Sol | Parkings | - | Immédiate | 1 872 HT/HC/place/an | 20 % HT du loyer annuel HT à la charge du preneur, payables à la signature du bail | T.V.A. (20%) | commercial 3-6-9 ans | ILAT Indice des Loyers des Activités Tertiaires | Trimestriel d'avance | |||||||||
| Total | 453 m² | |||||||||||||||||
| 1 | ||||||||||||||||||




















































