Ref : 2074270-0L
Location Bureau
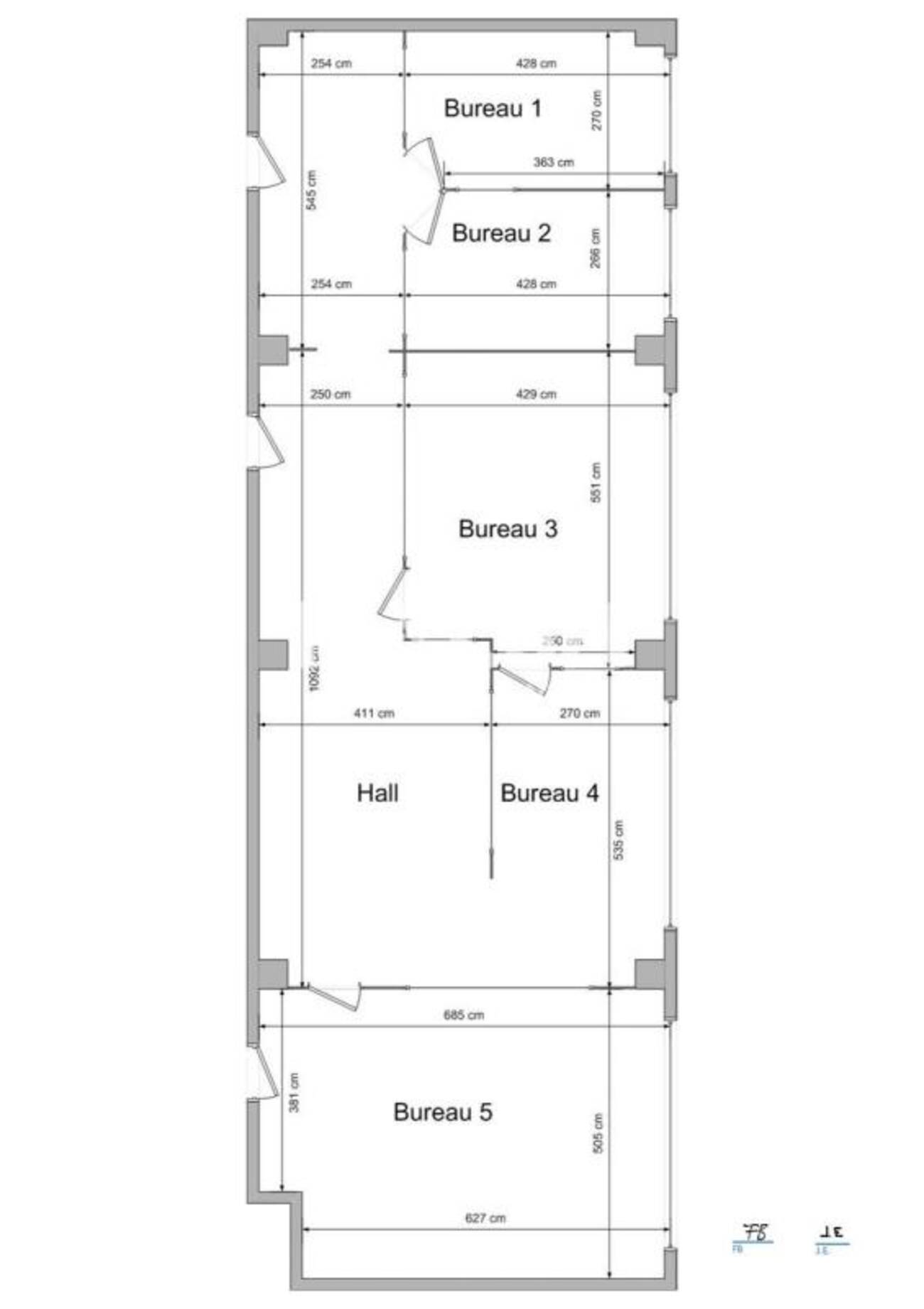
BUREAUX - A LOUER - LYON 69003 - 175 m²
Lyon 3 (69003)
Loyer : 23 952 € / an
Surface 175 m²
Description du bien
MALSH Realty vous propose des bureaux de 175 m², idéalement situés au coeur de la Part-Dieu, à quelques pas de la gare, du métro et du tramway. Implantés au 7ème étage d'un immeuble tertiaire sécurisé, ces bureaux bénéficient d'une vue dégagée et d'une belle luminosité. 1 parking complète cette offre
Prestations du bien
- Composition :
- 3 bureaux individuels
- Open Space
- Une grande salle de réunion
- Sanitaires communs
- Prestations :
- Immeuble tertiaire sécurisé
- Ascenseur
- Climatisation réversible
- Sol moquette
- Baie de brassage
- Câblage RJ45 et fibre optique
- Cloisons amovibles vitrées sur allèges
- Faux plafonds dalles avec luminaires encastrés
- Possibilité reprise de mobilier
Informations financières
- Charges minimales : 1 020 €
- Bail : commercial 3-6-9 ans
- Taxe foncière : 4 073 €
- Informations location :
Conditions particulières à la location : Les charges de copropriété : Climatisation, eau et entretien des parties communes
- Dépôt de garantie : 3 mois de loyer HT/HC
Ce local professionnel vous est présenté par
Vous souhaitez nous joindre ?
Surfaces des locaux
| Étage | Bâtiment | Type | Surfaces | Disponibilité | Loyer | Charges | Honoraires | Fiscal | Bail | Révision annuelle | Prix | Charges | Honoraires | Fiscal | Paiement Loyer | lot | Coworking | |
|---|---|---|---|---|---|---|---|---|---|---|---|---|---|---|---|---|---|---|
| 7 | Bureaux | 175 | Après accord | 136,83 HT/HC/m²/an | 12 245 HT/An | 15 % HT du loyer annuel HT à la charge du preneur, payables à la signature du bail | T.V.A. (20%) | commercial 3-6-9 ans | ILAT Indice des Loyers des Activités Tertiaires | Trimestriel d'avance | ||||||||
| Total | 175 m² |
Localisation et accessibilité
- Bus: Halles Paul Bocuse (BUS-C3, BUS-C13, BUS-38, BUS- PL1), Part-Dieu Auditorium (BUS-C9, BUS-C25)
- SCNF: Lyon-Part-Dieu (France)
- Metro: Gare Part-Dieu V.Merle (METRO-B)
- Tramway: Part-Dieu Auditorium (TRAMWAY-T1)
Ces biens pourraient vous intéresser
Ces articles peuvent vous intéresser
| Étage | Bâtiment | Type | Surfaces | Disponibilité | Loyer | Charges | Honoraires | Fiscal | Bail | Révision annuelle | Prix | Charges | Honoraires | Fiscal | Paiement Loyer | lot | Coworking | |
|---|---|---|---|---|---|---|---|---|---|---|---|---|---|---|---|---|---|---|
| 7 | Bureaux | 175 | Après accord | 136,83 HT/HC/m²/an | 12 245 HT/An | 15 % HT du loyer annuel HT à la charge du preneur, payables à la signature du bail | T.V.A. (20%) | commercial 3-6-9 ans | ILAT Indice des Loyers des Activités Tertiaires | Trimestriel d'avance | ||||||||
| Total | 175 m² |

































































