Ref : 1034536-0L
Location Bureau
Location Bureaux - Vaulx en Velin (69120) - 2313 m² divisibles à partir de 330 m²
Vaulx-en-Velin (69120)
Loyer : 444 132 € / an
Surface 2 313 m²
Divisible dès 330 m²
Description du bien
MALSH Realty & Property vous propose des bureaux à louer sur le secteur de Vaulx-en-Velin au coeur de la Soie à partir de 330 m².
Au sein d'un immeuble tertiaire neuf au coeur d'un îlot mixte de 26 000 m² de logements et bureaux, ces plateaux de bureaux disposent de places de parking en sous-sol.
Prestations du bien
- RT2012 -40% et BBiomax-20%
- Panneaux photovoltaique
- 3 terrasses accessibles dont une commune à l'immeuble
- Jardin végétalisé privatif de 600 m
- Locaux RDC ERP 5ème catégorie, adaptable en RIE ou salle de conférence
- Ascenseurs
- Contrôle d'accès avec lecteurs de badges
- Vidéophone dans chaque lot
- Vidéosurveillance
- Bureaux
- Hauteur libre de 2,70 m
- Eclairage LED
- Locaux archives en sous-sol :
- 12,60 m² et 11,24 m²
- Parkings en sous-sol :
- R+3 : 15 places
- R+1 : 15 places
Informations financières
- Charges minimales : 9 012 €
- Bail : commercial 6-9 ans
- Taxe foncière : 13 €
- Informations location :
Conditions particulières à la location : Loyer archives : 90 euros HT/HC/m²/an
- Dépôt de garantie : 3 mois de loyer HT/HC
- Honoraires de commercialisation : 15% HT d'un an de loyer HT à la charge du preneur, payables à la signature du bail
Ce local professionnel vous est présenté par
Vous souhaitez nous joindre ?
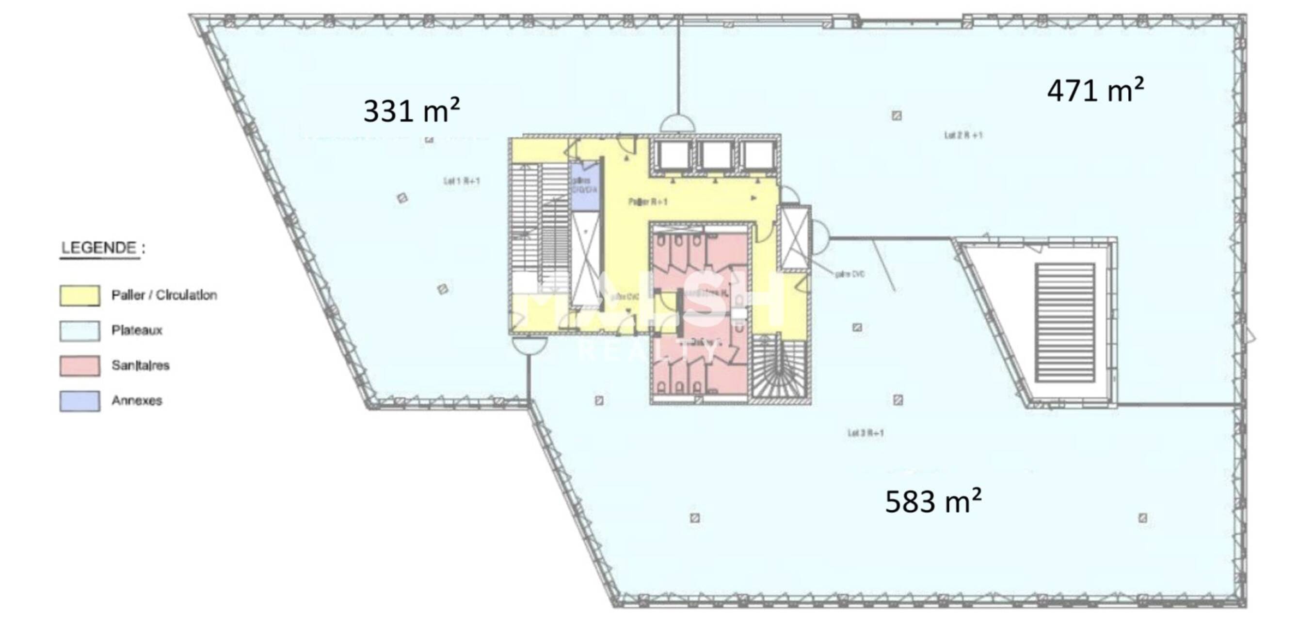
Surfaces des locaux
| Étage | Bâtiment | Type | Surfaces | Disponibilité | Loyer | Charges | Honoraires | Fiscal | Bail | Révision annuelle | Prix | Charges | Honoraires | Fiscal | Paiement Loyer | lot | Coworking | |
|---|---|---|---|---|---|---|---|---|---|---|---|---|---|---|---|---|---|---|
| 3 | Bureaux | 596,41 | Immédiate | 192 HT/HC/m²/an | 46,75 HT/m²/an | 15% HT d'un an de loyer HT à la charge du preneur, payables à la signature du bail | T.V.A. (20%) | commercial 6-9 ans | ILAT Indice des Loyers des Activités Tertiaires | Trimestriel d'avance | 303 | |||||||
| 3 | Bureaux | 331,1 | Immédiate | 192 HT/HC/m²/an | 46,75 HT/m²/an | 15% HT d'un an de loyer HT à la charge du preneur, payables à la signature du bail | T.V.A. (20%) | commercial 6-9 ans | ILAT Indice des Loyers des Activités Tertiaires | Trimestriel d'avance | 301 | |||||||
| 1 | Bureaux | 583,32 | Immédiate | 192 HT/HC/m²/an | 46,75 HT/m²/an | 15% HT d'un an de loyer HT à la charge du preneur, payables à la signature du bail | T.V.A. (20%) | commercial 6-9 ans | ILAT Indice des Loyers des Activités Tertiaires | Trimestriel d'avance | 103 | |||||||
| 1 | Bureaux | 471,47 | Immédiate | 192 HT/HC/m²/an | 46,75 HT/m²/an | 15% HT d'un an de loyer HT à la charge du preneur, payables à la signature du bail | T.V.A. (20%) | commercial 6-9 ans | ILAT Indice des Loyers des Activités Tertiaires | Trimestriel d'avance | 102 | |||||||
| 1 | Bureaux | 330,87 | Immédiate | 192 HT/HC/m²/an | 46,75 HT/m²/an | 15% HT d'un an de loyer HT à la charge du preneur, payables à la signature du bail | T.V.A. (20%) | commercial 6-9 ans | ILAT Indice des Loyers des Activités Tertiaires | Trimestriel d'avance | 101 | |||||||
| Parkings | - | Immédiate | 1 400 HT/Unité/an | 15% HT d'un an de loyer HT à la charge du preneur, payables à la signature du bail | T.V.A. (20%) | commercial 6-9 ans | ILAT Indice des Loyers des Activités Tertiaires | Trimestriel d'avance | ||||||||||
| Total | 2 313,17 m² | |||||||||||||||||
| 30 en sous-sol | ||||||||||||||||||
Localisation et accessibilité
- SCNF: PART-DIEU à 13 min via le Tramway T3
- Metro: Métro ligne A, station « Vaulx-En-Velin La Soie »
- Tramway: Tramway ligne T3 arrêt « Vaulx-En-Velin La Soie » + ligne RhônExpress à 70 m
Ces biens pourraient vous intéresser
Ces articles peuvent vous intéresser
| Étage | Bâtiment | Type | Surfaces | Disponibilité | Loyer | Charges | Honoraires | Fiscal | Bail | Révision annuelle | Prix | Charges | Honoraires | Fiscal | Paiement Loyer | lot | Coworking | |
|---|---|---|---|---|---|---|---|---|---|---|---|---|---|---|---|---|---|---|
| 3 | Bureaux | 596,41 | Immédiate | 192 HT/HC/m²/an | 46,75 HT/m²/an | 15% HT d'un an de loyer HT à la charge du preneur, payables à la signature du bail | T.V.A. (20%) | commercial 6-9 ans | ILAT Indice des Loyers des Activités Tertiaires | Trimestriel d'avance | 303 | |||||||
| 3 | Bureaux | 331,1 | Immédiate | 192 HT/HC/m²/an | 46,75 HT/m²/an | 15% HT d'un an de loyer HT à la charge du preneur, payables à la signature du bail | T.V.A. (20%) | commercial 6-9 ans | ILAT Indice des Loyers des Activités Tertiaires | Trimestriel d'avance | 301 | |||||||
| 1 | Bureaux | 583,32 | Immédiate | 192 HT/HC/m²/an | 46,75 HT/m²/an | 15% HT d'un an de loyer HT à la charge du preneur, payables à la signature du bail | T.V.A. (20%) | commercial 6-9 ans | ILAT Indice des Loyers des Activités Tertiaires | Trimestriel d'avance | 103 | |||||||
| 1 | Bureaux | 471,47 | Immédiate | 192 HT/HC/m²/an | 46,75 HT/m²/an | 15% HT d'un an de loyer HT à la charge du preneur, payables à la signature du bail | T.V.A. (20%) | commercial 6-9 ans | ILAT Indice des Loyers des Activités Tertiaires | Trimestriel d'avance | 102 | |||||||
| 1 | Bureaux | 330,87 | Immédiate | 192 HT/HC/m²/an | 46,75 HT/m²/an | 15% HT d'un an de loyer HT à la charge du preneur, payables à la signature du bail | T.V.A. (20%) | commercial 6-9 ans | ILAT Indice des Loyers des Activités Tertiaires | Trimestriel d'avance | 101 | |||||||
| Parkings | - | Immédiate | 1 400 HT/Unité/an | 15% HT d'un an de loyer HT à la charge du preneur, payables à la signature du bail | T.V.A. (20%) | commercial 6-9 ans | ILAT Indice des Loyers des Activités Tertiaires | Trimestriel d'avance | ||||||||||
| Total | 2 313,17 m² | |||||||||||||||||
| 30 en sous-sol | ||||||||||||||||||


































































