Ref : 1395920-0
Vente Bureau
A VENDRE OU A LOUER - Bureaux 347 m² divisibles à partir de 95 m² - VILLEFRANCHE-SUR-SAÔNE
Villefranche-sur-Saône (69400)
Prix : Nous contacter
Surface 346 m²
Divisible dès 95 m²
Description du bien
MALSH Realty vous propose à la vente ou à la location au coeur de Villefranche-sur-Saône, à deux pas de la rue Nationale, des locaux en RDC d'une surface totale d'environ 347 m² divisibles en 3 lots à partir de 95 m². Ces locaux sont situés dans le programme ART DE VILLE, face au Musée d'Art Moderne Paul-Dini et au collège Faubert. Ce programme mixte mêle commerces et habitations et offre quatre cellules en pied d'immeuble.Il est doté d'un accès PMR, est livré brut de béton, prêt à être aménagé selon vos besoins.
Prestations du bien
- Construction et isolation selon les normes RT 2012
- Menuiseries double vitrage isolant thermique et acoustique en acier ou alu laqué vitré (vitrage feuilletée retardateur d'effraction)
- Livré brut de béton, fluides en attente, vitrines posées
- 6 places de stationnement au 2ème sous-sol (4 simples + 2 doubles)
- Parking des Ursulines à proximité (333 places)
- Puissance électrique 12kva
- Conforme ERP : Oui
- Hauteur sous plafond 2.73 m
Informations financières
- Bail : commercial 6-9 ans
- Dépôt de garantie : 3 mois de loyer HT/HC
Ce local professionnel vous est présenté par
Vous souhaitez nous joindre ?
Surfaces des locaux
| Étage | Bâtiment | Type | Surfaces | Disponibilité | Loyer | Charges | Honoraires | Fiscal | Bail | Révision annuelle | Prix | Charges | Honoraires | Fiscal | Paiement Loyer | lot | Coworking | |
|---|---|---|---|---|---|---|---|---|---|---|---|---|---|---|---|---|---|---|
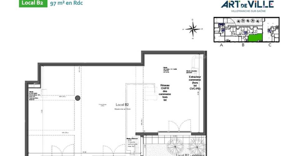
| RDC | Bureaux | 97,3 | 140 HT/HC/m²/an | 15 % HT du loyer annuel HT/HC à la charge du preneur, payables à la signature du bail | T.V.A. (20%) | ILAT Indice des Loyers des Activités Tertiaires | 2 450 HT/m² | 2 % HT du prix de vente HT, à la charge de l'acquéreur, payables à la signature de l'acte | TVA | Trimestriel d'avance | ||||||||
| Sous-Sol | Parkings | - | 775 HT/HC/Unité/an | 15 % HT du loyer annuel HT/HC à la charge du preneur, payables à la signature du bail | T.V.A. (20%) | ILAT Indice des Loyers des Activités Tertiaires | 13 000 HT/Unité | 2 % HT du prix de vente HT, à la charge de l'acquéreur, payables à la signature de l'acte | TVA | Trimestriel d'avance | ||||||||
| Sous-Sol | Parkings | - | 1 130 HT/HC/Unité/an | 15 % HT du loyer annuel HT/HC à la charge du preneur, payables à la signature du bail | T.V.A. (20%) | ILAT Indice des Loyers des Activités Tertiaires | 18 000 HT/Unité | 2 % HT du prix de vente HT, à la charge de l'acquéreur, payables à la signature de l'acte | TVA | Trimestriel d'avance | ||||||||
| Total Cellule B2 | Bureaux | 97,3 | Immédiate | 15 % HT du loyer annuel HT/HC à la charge du preneur, payables à la signature du bail | T.V.A. (20%) | commercial 6-9 ans | ILAT Indice des Loyers des Activités Tertiaires | 2 % HT du prix de vente HT, à la charge de l'acquéreur, payables à la signature de l'acte | TVA | Trimestriel d'avance | B2 | |||||||
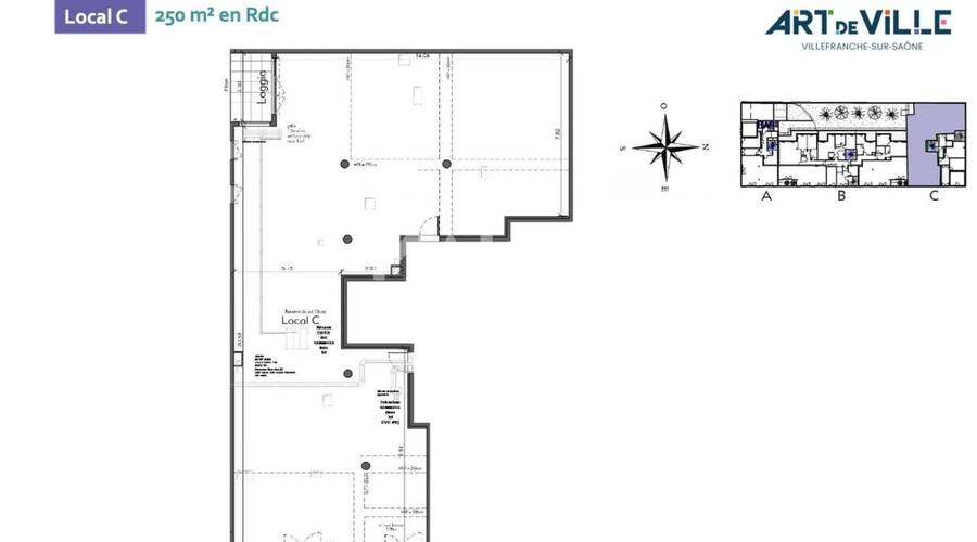
| RDC | Bureaux | 154,21 | 140 HT/HC/m²/an | 15 % HT du loyer annuel HT/HC à la charge du preneur, payables à la signature du bail | T.V.A. (20%) | ILAT Indice des Loyers des Activités Tertiaires | 2 450 HT/m² | 2 % HT du prix de vente HT, à la charge de l'acquéreur, payables à la signature de l'acte | TVA | Trimestriel d'avance | ||||||||
| Sous-Sol | Parkings | - | 775 HT/HC/Unité/an | 15 % HT du loyer annuel HT/HC à la charge du preneur, payables à la signature du bail | T.V.A. (20%) | ILAT Indice des Loyers des Activités Tertiaires | 13 000 HT/Unité | 2 % HT du prix de vente HT, à la charge de l'acquéreur, payables à la signature de l'acte | TVA | Trimestriel d'avance | ||||||||
| Total Cellule C1 | Bureaux | 154,21 | Immédiate | 15 % HT du loyer annuel HT/HC à la charge du preneur, payables à la signature du bail | T.V.A. (20%) | commercial 6-9 ans | ILAT Indice des Loyers des Activités Tertiaires | 2 % HT du prix de vente HT, à la charge de l'acquéreur, payables à la signature de l'acte | TVA | Trimestriel d'avance | C1 | |||||||
| RDC | Bureaux | 95,02 | 140 HT/HC/m²/an | 15 % HT du loyer annuel HT/HC à la charge du preneur, payables à la signature du bail | T.V.A. (20%) | ILAT Indice des Loyers des Activités Tertiaires | 2 450 HT/m² | 2 % HT du prix de vente HT, à la charge de l'acquéreur, payables à la signature de l'acte | TVA | Trimestriel d'avance | ||||||||
| Sous-Sol | Parkings | - | 775 HT/HC/Unité/an | 15 % HT du loyer annuel HT/HC à la charge du preneur, payables à la signature du bail | T.V.A. (20%) | ILAT Indice des Loyers des Activités Tertiaires | 13 000 HT/Unité | 2 % HT du prix de vente HT, à la charge de l'acquéreur, payables à la signature de l'acte | TVA | Trimestriel d'avance | ||||||||
| Sous-Sol | Parkings | - | 1 130 HT/HC/Unité/an | 15 % HT du loyer annuel HT/HC à la charge du preneur, payables à la signature du bail | T.V.A. (20%) | ILAT Indice des Loyers des Activités Tertiaires | 18 000 HT/Unité | 2 % HT du prix de vente HT, à la charge de l'acquéreur, payables à la signature de l'acte | TVA | Trimestriel d'avance | ||||||||
| Total Cellule C2 | Bureaux | 95,02 | Immédiate | 15 % HT du loyer annuel HT/HC à la charge du preneur, payables à la signature du bail | T.V.A. (20%) | commercial 6-9 ans | ILAT Indice des Loyers des Activités Tertiaires | 2 % HT du prix de vente HT, à la charge de l'acquéreur, payables à la signature de l'acte | TVA | Trimestriel d'avance | C2 | |||||||
| Total | 346,53 m² | |||||||||||||||||
| 1 simple 1 double 2 simple 1 simple 1 double | ||||||||||||||||||
Localisation et accessibilité
- Bus: Lignes du réseau Libellule dans un rayon de 5 min à pieds : 1,2,3,4,5,7,8,10,11,12, 14 et 17
- SCNF: Gare SNCF de Villefranche-sur-Saône : 11 min à pieds
Ces biens pourraient vous intéresser
Ces articles peuvent vous intéresser
| Étage | Bâtiment | Type | Surfaces | Disponibilité | Loyer | Charges | Honoraires | Fiscal | Bail | Révision annuelle | Prix | Charges | Honoraires | Fiscal | Paiement Loyer | lot | Coworking | |
|---|---|---|---|---|---|---|---|---|---|---|---|---|---|---|---|---|---|---|
| RDC | Bureaux | 97,3 | 140 HT/HC/m²/an | 15 % HT du loyer annuel HT/HC à la charge du preneur, payables à la signature du bail | T.V.A. (20%) | ILAT Indice des Loyers des Activités Tertiaires | 2 450 HT/m² | 2 % HT du prix de vente HT, à la charge de l'acquéreur, payables à la signature de l'acte | TVA | Trimestriel d'avance | ||||||||
| Sous-Sol | Parkings | - | 775 HT/HC/Unité/an | 15 % HT du loyer annuel HT/HC à la charge du preneur, payables à la signature du bail | T.V.A. (20%) | ILAT Indice des Loyers des Activités Tertiaires | 13 000 HT/Unité | 2 % HT du prix de vente HT, à la charge de l'acquéreur, payables à la signature de l'acte | TVA | Trimestriel d'avance | ||||||||
| Sous-Sol | Parkings | - | 1 130 HT/HC/Unité/an | 15 % HT du loyer annuel HT/HC à la charge du preneur, payables à la signature du bail | T.V.A. (20%) | ILAT Indice des Loyers des Activités Tertiaires | 18 000 HT/Unité | 2 % HT du prix de vente HT, à la charge de l'acquéreur, payables à la signature de l'acte | TVA | Trimestriel d'avance | ||||||||
| Total Cellule B2 | Bureaux | 97,3 | Immédiate | 15 % HT du loyer annuel HT/HC à la charge du preneur, payables à la signature du bail | T.V.A. (20%) | commercial 6-9 ans | ILAT Indice des Loyers des Activités Tertiaires | 2 % HT du prix de vente HT, à la charge de l'acquéreur, payables à la signature de l'acte | TVA | Trimestriel d'avance | B2 | |||||||
| RDC | Bureaux | 154,21 | 140 HT/HC/m²/an | 15 % HT du loyer annuel HT/HC à la charge du preneur, payables à la signature du bail | T.V.A. (20%) | ILAT Indice des Loyers des Activités Tertiaires | 2 450 HT/m² | 2 % HT du prix de vente HT, à la charge de l'acquéreur, payables à la signature de l'acte | TVA | Trimestriel d'avance | ||||||||
| Sous-Sol | Parkings | - | 775 HT/HC/Unité/an | 15 % HT du loyer annuel HT/HC à la charge du preneur, payables à la signature du bail | T.V.A. (20%) | ILAT Indice des Loyers des Activités Tertiaires | 13 000 HT/Unité | 2 % HT du prix de vente HT, à la charge de l'acquéreur, payables à la signature de l'acte | TVA | Trimestriel d'avance | ||||||||
| Total Cellule C1 | Bureaux | 154,21 | Immédiate | 15 % HT du loyer annuel HT/HC à la charge du preneur, payables à la signature du bail | T.V.A. (20%) | commercial 6-9 ans | ILAT Indice des Loyers des Activités Tertiaires | 2 % HT du prix de vente HT, à la charge de l'acquéreur, payables à la signature de l'acte | TVA | Trimestriel d'avance | C1 | |||||||
| RDC | Bureaux | 95,02 | 140 HT/HC/m²/an | 15 % HT du loyer annuel HT/HC à la charge du preneur, payables à la signature du bail | T.V.A. (20%) | ILAT Indice des Loyers des Activités Tertiaires | 2 450 HT/m² | 2 % HT du prix de vente HT, à la charge de l'acquéreur, payables à la signature de l'acte | TVA | Trimestriel d'avance | ||||||||
| Sous-Sol | Parkings | - | 775 HT/HC/Unité/an | 15 % HT du loyer annuel HT/HC à la charge du preneur, payables à la signature du bail | T.V.A. (20%) | ILAT Indice des Loyers des Activités Tertiaires | 13 000 HT/Unité | 2 % HT du prix de vente HT, à la charge de l'acquéreur, payables à la signature de l'acte | TVA | Trimestriel d'avance | ||||||||
| Sous-Sol | Parkings | - | 1 130 HT/HC/Unité/an | 15 % HT du loyer annuel HT/HC à la charge du preneur, payables à la signature du bail | T.V.A. (20%) | ILAT Indice des Loyers des Activités Tertiaires | 18 000 HT/Unité | 2 % HT du prix de vente HT, à la charge de l'acquéreur, payables à la signature de l'acte | TVA | Trimestriel d'avance | ||||||||
| Total Cellule C2 | Bureaux | 95,02 | Immédiate | 15 % HT du loyer annuel HT/HC à la charge du preneur, payables à la signature du bail | T.V.A. (20%) | commercial 6-9 ans | ILAT Indice des Loyers des Activités Tertiaires | 2 % HT du prix de vente HT, à la charge de l'acquéreur, payables à la signature de l'acte | TVA | Trimestriel d'avance | C2 | |||||||
| Total | 346,53 m² | |||||||||||||||||
| 1 simple 1 double 2 simple 1 simple 1 double | ||||||||||||||||||
















































