Ref : 2150700-0V
Vente Bureau
Vente bâtiment tertiaire neuf indépendant - LIMONEST (69760) - 1 228 m²
Limonest (69760)
Prix : Nous contacter
Surface 1 238 m²
Description du bien
MALSH Realty vous propose à la vente un bâtiment indépendant de bureaux neufs de 1 227 m² non divisibles situé à Limonest, au sein du programme LIMOVALLEY 2, disponible immédiatement ; livré hors d'eau / hors d'air et prêt à aménager selon vos besoins, ce bien offre une grande flexibilité d'aménagement dans une structure moderne en béton avec façades vitrées, accès indépendant, parkings extérieurs dédiés et terrasses, tout en bénéficiant d'une accessibilité PMR et d'un environnement conforme aux normes en vigueur, idéal pour un projet sur mesure.
Prestations du bien
- Livraison :
- - Livré en état hors d'eau / hors d'air, clos et couvert, prêt à aménager selon vos besoins professionnels.
- Structure & gros oeuvre :
- - Structure complète en béton préfabriqué
- - Dalle brute
- - Poteaux et poutres apparents
- - Excellente résistance au feu et performances thermiques
- Enveloppe extérieure :
- - Façades finition noire
- - Murs-rideaux vitrés
- - Menuiseries aluminium avec double vitrage
- - Portes d'accès conformes PMR
- Équipements techniques (attentes) :
- - Réseaux électriques en attente
- - Attentes plomberie (EU / EP / AEP)
- - Fibre optique
- - Ascenseur possible selon configuration
- Normes & accessibilité :
- - Conforme RT2012
- - Accessibilité PMR
- - Respect des normes en vigueur
- Accès & stationnement :
- - Accès indépendant
- - Parking extérieur dédié
- - Voirie aménagée
- Aménagement intérieur :
- - Plateau brut permettant un aménagement sur mesure selon votre activité (second oeuvre à la charge de l'acquéreur)
Informations financières
- Taxe foncière : 15 €
Ce local professionnel vous est présenté par
Vous souhaitez nous joindre ?
Surfaces des locaux
| Étage | Bâtiment | Type | Surfaces | Disponibilité | Loyer | Charges | Honoraires | Fiscal | Bail | Révision annuelle | Prix | Charges | Honoraires | Fiscal | Paiement Loyer | lot | Coworking | |
|---|---|---|---|---|---|---|---|---|---|---|---|---|---|---|---|---|---|---|
| Mezzanine | Bureaux | 218,4 | 2 550 m² HD | 3% HT du montant de la vente HDE, à la charge de l'acquéreur | TVA + Droits d'enregistrement réduits | |||||||||||||
| RDC | Bureaux | 218,4 | 2 700 m² HT HD | 3% HT du montant de la vente HDE, à la charge de l'acquéreur | TVA + Droits d'enregistrement réduits | |||||||||||||
| Parkings | - | 9 000 /U HT HD | 3% HT du montant de la vente HDE, à la charge de l'acquéreur | TVA + Droits d'enregistrement réduits | ||||||||||||||
| Total Cellule RDC BAS DROITE | Bureaux | 436,8 | Immédiate | 3% HT du montant de la vente HDE, à la charge de l'acquéreur | TVA + Droits d'enregistrement réduits | RDC BAS DROITE | ||||||||||||
| Mezzanine | Bureaux | 113 | 2 550 m² HT HD | 3% HT du montant de la vente HDE, à la charge de l'acquéreur | TVA + Droits d'enregistrement réduits | |||||||||||||
| RDC | Bureaux | 113 | 2 700 m²HT HD | 3% HT du montant de la vente HDE, à la charge de l'acquéreur | TVA + Droits d'enregistrement réduits | |||||||||||||
| Terrasse | Terrasse | 61 | 1 600 m² HT HD | 3% HT du montant de la vente HDE, à la charge de l'acquéreur | TVA + Droits d'enregistrement réduits | |||||||||||||
| Parkings | - | 9 000 /U HT HD | 3% HT du montant de la vente HDE, à la charge de l'acquéreur | TVA + Droits d'enregistrement réduits | ||||||||||||||
| Total Cellule RDC BAS GAUCHE | Bureaux | 226 | Immédiate | 3% HT du montant de la vente HDE, à la charge de l'acquéreur | TVA + Droits d'enregistrement réduits | RDC BAS GAUCHE | ||||||||||||
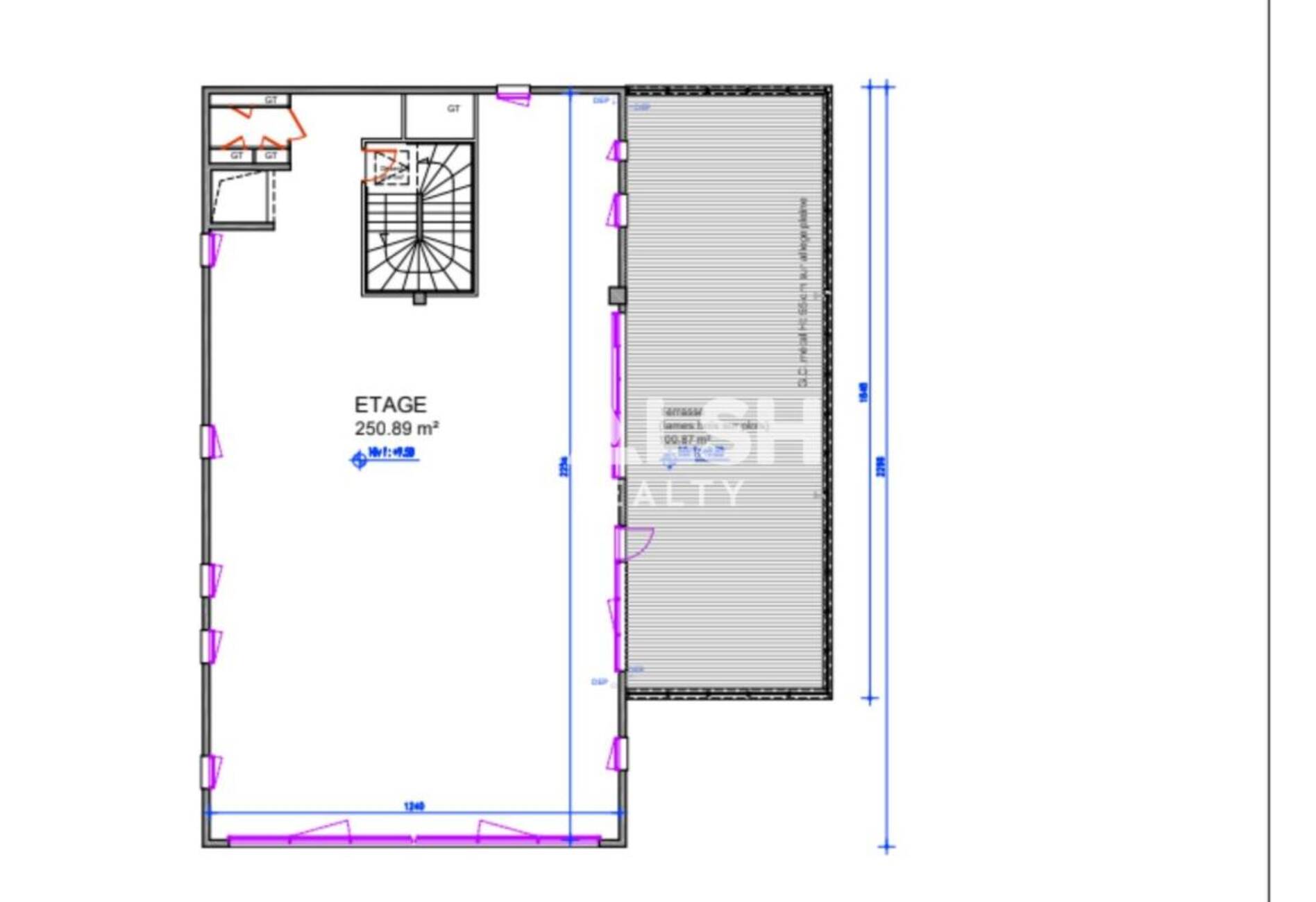
| R+1 | Bureaux | 250,89 | 2 700 m² HT HD | 3% HT du montant de la vente HDE, à la charge de l'acquéreur | TVA + Droits d'enregistrement réduits | |||||||||||||
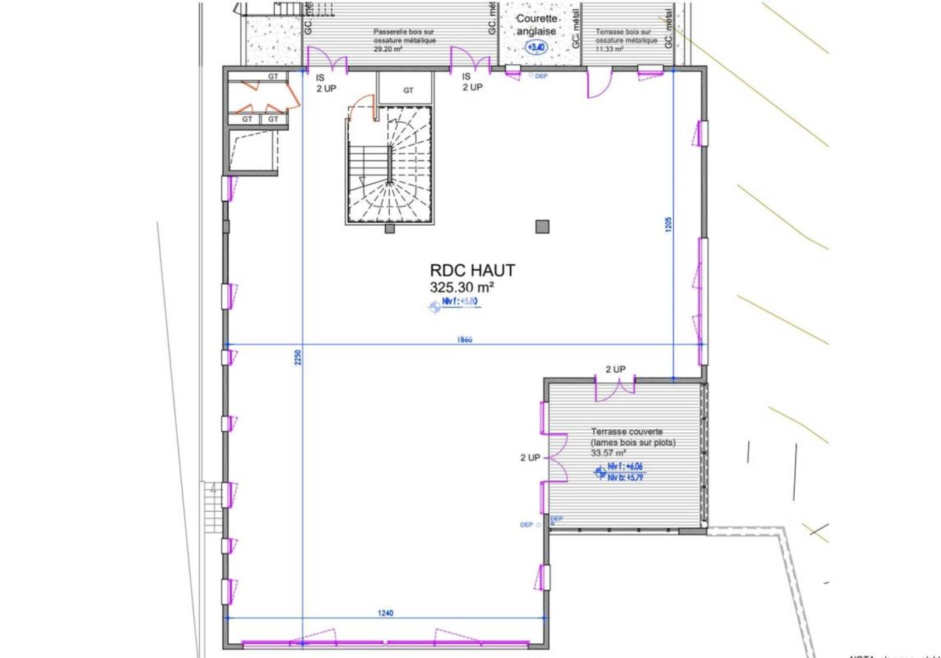
| RDC | Bureaux | 325,3 | 2 700 m² HT HD | 3% HT du montant de la vente HDE, à la charge de l'acquéreur | TVA + Droits d'enregistrement réduits | |||||||||||||
| Terrasse | Terrasse | 100,87 | 1 600 m² HT HD | 3% HT du montant de la vente HDE, à la charge de l'acquéreur | TVA + Droits d'enregistrement réduits | |||||||||||||
| Terrasse | Terrasse | 74 | 1 600 m² HT HD | 3% HT du montant de la vente HDE, à la charge de l'acquéreur | TVA + Droits d'enregistrement réduits | |||||||||||||
| Parkings | - | 9 000 /U HT HD | 3% HT du montant de la vente HDE, à la charge de l'acquéreur | TVA + Droits d'enregistrement réduits | ||||||||||||||
| Total Cellule RDC HAUT & R+1 | Bureaux | 576,19 | Immédiate | 3% HT du montant de la vente HDE, à la charge de l'acquéreur | TVA + Droits d'enregistrement réduits | RDC HAUT & R+1 | ||||||||||||
| Total | 1 474,86 m² | |||||||||||||||||
| 6 8 3 | ||||||||||||||||||
Localisation et accessibilité
- Bus: Lignes 3, 10, 118 et 61
- SCNF: Dardilly-Le-Jubin (France)
Ces articles peuvent vous intéresser
| Étage | Bâtiment | Type | Surfaces | Disponibilité | Loyer | Charges | Honoraires | Fiscal | Bail | Révision annuelle | Prix | Charges | Honoraires | Fiscal | Paiement Loyer | lot | Coworking | |
|---|---|---|---|---|---|---|---|---|---|---|---|---|---|---|---|---|---|---|
| Mezzanine | Bureaux | 218,4 | 2 550 m² HD | 3% HT du montant de la vente HDE, à la charge de l'acquéreur | TVA + Droits d'enregistrement réduits | |||||||||||||
| RDC | Bureaux | 218,4 | 2 700 m² HT HD | 3% HT du montant de la vente HDE, à la charge de l'acquéreur | TVA + Droits d'enregistrement réduits | |||||||||||||
| Parkings | - | 9 000 /U HT HD | 3% HT du montant de la vente HDE, à la charge de l'acquéreur | TVA + Droits d'enregistrement réduits | ||||||||||||||
| Total Cellule RDC BAS DROITE | Bureaux | 436,8 | Immédiate | 3% HT du montant de la vente HDE, à la charge de l'acquéreur | TVA + Droits d'enregistrement réduits | RDC BAS DROITE | ||||||||||||
| Mezzanine | Bureaux | 113 | 2 550 m² HT HD | 3% HT du montant de la vente HDE, à la charge de l'acquéreur | TVA + Droits d'enregistrement réduits | |||||||||||||
| RDC | Bureaux | 113 | 2 700 m²HT HD | 3% HT du montant de la vente HDE, à la charge de l'acquéreur | TVA + Droits d'enregistrement réduits | |||||||||||||
| Terrasse | Terrasse | 61 | 1 600 m² HT HD | 3% HT du montant de la vente HDE, à la charge de l'acquéreur | TVA + Droits d'enregistrement réduits | |||||||||||||
| Parkings | - | 9 000 /U HT HD | 3% HT du montant de la vente HDE, à la charge de l'acquéreur | TVA + Droits d'enregistrement réduits | ||||||||||||||
| Total Cellule RDC BAS GAUCHE | Bureaux | 226 | Immédiate | 3% HT du montant de la vente HDE, à la charge de l'acquéreur | TVA + Droits d'enregistrement réduits | RDC BAS GAUCHE | ||||||||||||
| R+1 | Bureaux | 250,89 | 2 700 m² HT HD | 3% HT du montant de la vente HDE, à la charge de l'acquéreur | TVA + Droits d'enregistrement réduits | |||||||||||||
| RDC | Bureaux | 325,3 | 2 700 m² HT HD | 3% HT du montant de la vente HDE, à la charge de l'acquéreur | TVA + Droits d'enregistrement réduits | |||||||||||||
| Terrasse | Terrasse | 100,87 | 1 600 m² HT HD | 3% HT du montant de la vente HDE, à la charge de l'acquéreur | TVA + Droits d'enregistrement réduits | |||||||||||||
| Terrasse | Terrasse | 74 | 1 600 m² HT HD | 3% HT du montant de la vente HDE, à la charge de l'acquéreur | TVA + Droits d'enregistrement réduits | |||||||||||||
| Parkings | - | 9 000 /U HT HD | 3% HT du montant de la vente HDE, à la charge de l'acquéreur | TVA + Droits d'enregistrement réduits | ||||||||||||||
| Total Cellule RDC HAUT & R+1 | Bureaux | 576,19 | Immédiate | 3% HT du montant de la vente HDE, à la charge de l'acquéreur | TVA + Droits d'enregistrement réduits | RDC HAUT & R+1 | ||||||||||||
| Total | 1 474,86 m² | |||||||||||||||||
| 6 8 3 | ||||||||||||||||||


























































