Ref : 2150942-0V
Vente Bureau
Vente Bureaux neufs - LIMONEST (69760) - 584 m² divisibles à partir de 140 m²
Limonest (69760)
Prix : Nous contacter
Surface 584 m²
Divisible dès 140 m²
Description du bien
MALSH Realty vous propose à la vente des bureaux neufs situés à Limonest, au sein du programme LIMOVALLEY 2, offrant jusqu'à 584 m² divisibles à partir de 140 m², disponibles immédiatement ; ces plateaux lumineux, livrés aménagés, non cloisonnés, offrent des prestations de qualité et modernes, et disposent de parkings privatifs et d'une terrasse, avec une accessibilité PMR et un classement ERP de type 5, idéals pour tout type d'implantation.
Prestations du bien
- Photos non contractuelles : elles illustrent des bureaux déjà aménagés aux étages inférieurs et permettent de se projeter dans les espaces en cours de finalisation
- - Bureaux neufs
- - Plateau livré aménagé, non cloisonné
- - Espaces lumineux
- - Faux plafond
- - Sol en dalles de moquette
- - Plinthes périphériques avec prises RJ45
- - Raccordement à la fibre optique
- - Baie de brassage
- - Sanitaires en parties communes
- - Éclairage par pavés LED encastrés
- - Fenêtres en double vitrage
- - Stores BSO (Brise-Soleil Orientables)
- - Climatisation réversible
- - Terrasse
- - Stationnements privatifs extérieurs
- - Accessibilité conforme PMR
- - Classement ERP de type 5
Informations financières
- Taxe foncière : 15 €
Ce local professionnel vous est présenté par
Vous souhaitez nous joindre ?
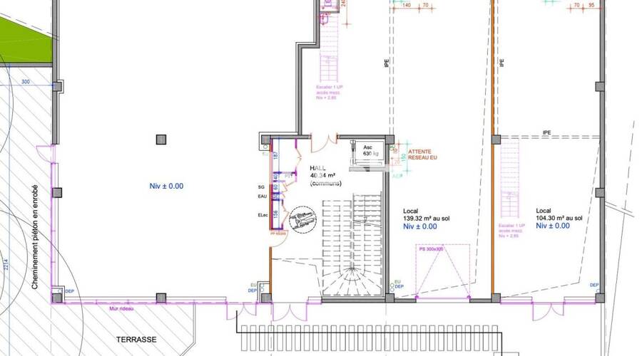
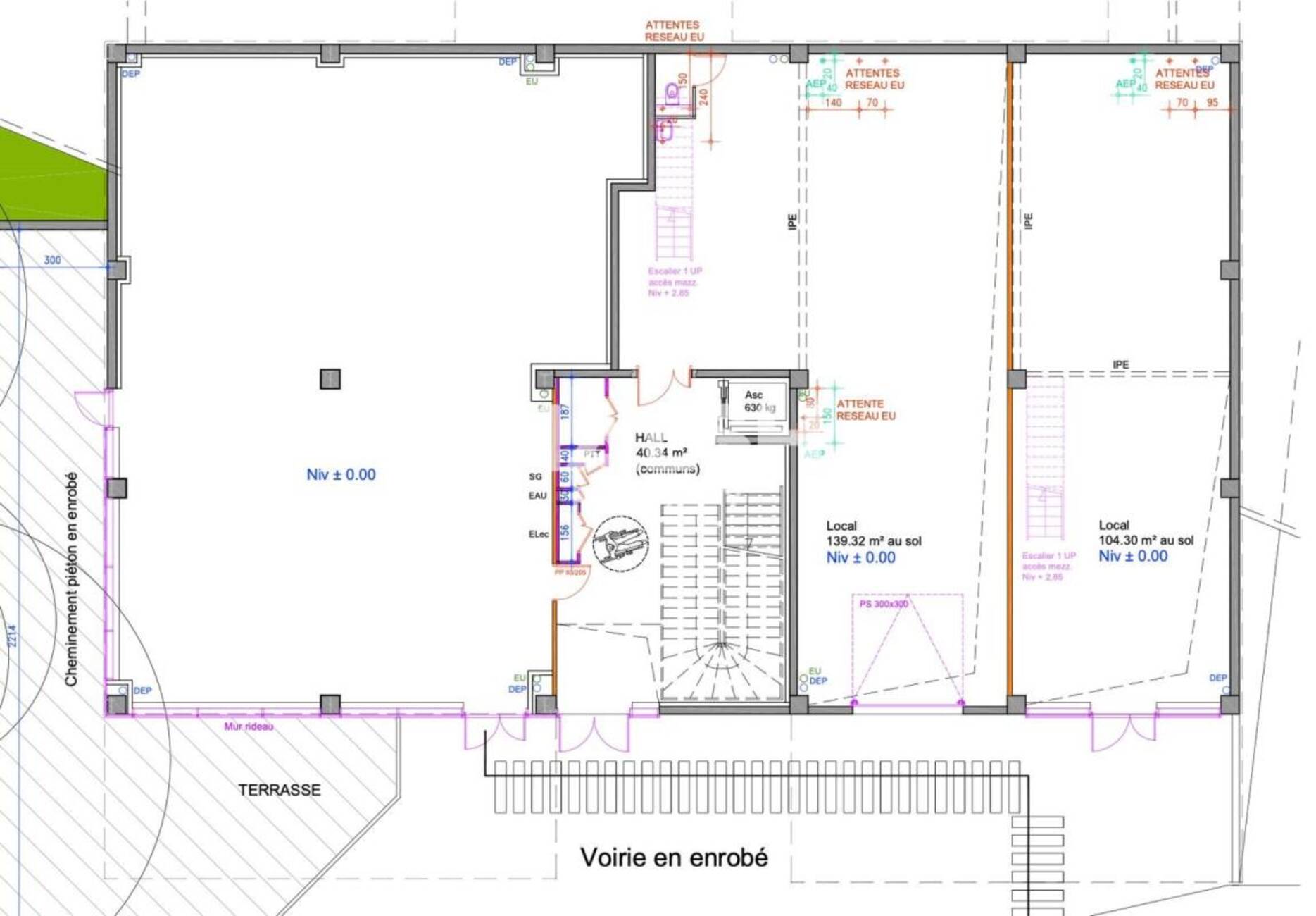
Surfaces des locaux
| Étage | Bâtiment | Type | Surfaces | Disponibilité | Loyer | Charges | Honoraires | Fiscal | Bail | Révision annuelle | Prix | Charges | Honoraires | Fiscal | Paiement Loyer | lot | Coworking | |
|---|---|---|---|---|---|---|---|---|---|---|---|---|---|---|---|---|---|---|
| Mezzanine | Commerce | 51,89 | 2 400 m² HT HD | 36 m²/an HT | 3 % HT du prix de vente HDE, à la charge de l'acquéreur, payables à la signature de l'acte | TVA + Droits d'enregistrement réduits | ||||||||||||
| RDC | Commerce | 104,3 | 2 850 m² HT HD | 36 m²/an HT | 3 % HT du prix de vente HDE, à la charge de l'acquéreur, payables à la signature de l'acte | TVA + Droits d'enregistrement réduits | ||||||||||||
| Parkings | - | 9 000 m² HT HD | 3 % HT du prix de vente HDE, à la charge de l'acquéreur, payables à la signature de l'acte | TVA + Droits d'enregistrement réduits | ||||||||||||||
| Total Cellule LOT A | Commerce | 156,19 | Immédiate | 3 % HT du prix de vente HDE, à la charge de l'acquéreur, payables à la signature de l'acte | TVA + Droits d'enregistrement réduits | LOT A | ||||||||||||
| R+1 | Bureaux | 288,04 | 2 950 /m² HT HD | 36 m²/an HT | 3 % HT du prix de vente HDE, à la charge de l'acquéreur, payables à la signature de l'acte | TVA + Droits d'enregistrement réduits | ||||||||||||
| Terrasse | Terrasse | 19 | 1 600 m² HT HD | 3 % HT du prix de vente HDE, à la charge de l'acquéreur, payables à la signature de l'acte | TVA + Droits d'enregistrement réduits | |||||||||||||
| Parkings | - | 9 000 m² HT HD | 3 % HT du prix de vente HDE, à la charge de l'acquéreur, payables à la signature de l'acte | TVA + Droits d'enregistrement réduits | ||||||||||||||
| Total Cellule LOT E | Bureaux | 288,04 | Immédiate | 3 % HT du prix de vente HDE, à la charge de l'acquéreur, payables à la signature de l'acte | TVA + Droits d'enregistrement réduits | LOT E | ||||||||||||
| R+1 | Bureaux | 140,27 | 2 950 /m² HT HD | 36 m²/an HT | 3 % HT du prix de vente HDE, à la charge de l'acquéreur, payables à la signature de l'acte | TVA + Droits d'enregistrement réduits | ||||||||||||
| Parkings | - | 9 000 m² HT HD | 3 % HT du prix de vente HDE, à la charge de l'acquéreur, payables à la signature de l'acte | TVA + Droits d'enregistrement réduits | ||||||||||||||
| Total Cellule LOT F | Bureaux | 140,27 | Immédiate | 3 % HT du prix de vente HDE, à la charge de l'acquéreur, payables à la signature de l'acte | TVA + Droits d'enregistrement réduits | LOT F | ||||||||||||
| Total | 603,5 m² | |||||||||||||||||
| 10 4 3 | ||||||||||||||||||
Localisation et accessibilité
- Bus: Lignes 3, 10, 118 et 61
- SCNF: Dardilly-Le-Jubin (France)
Ces articles peuvent vous intéresser
| Étage | Bâtiment | Type | Surfaces | Disponibilité | Loyer | Charges | Honoraires | Fiscal | Bail | Révision annuelle | Prix | Charges | Honoraires | Fiscal | Paiement Loyer | lot | Coworking | |
|---|---|---|---|---|---|---|---|---|---|---|---|---|---|---|---|---|---|---|
| Mezzanine | Commerce | 51,89 | 2 400 m² HT HD | 36 m²/an HT | 3 % HT du prix de vente HDE, à la charge de l'acquéreur, payables à la signature de l'acte | TVA + Droits d'enregistrement réduits | ||||||||||||
| RDC | Commerce | 104,3 | 2 850 m² HT HD | 36 m²/an HT | 3 % HT du prix de vente HDE, à la charge de l'acquéreur, payables à la signature de l'acte | TVA + Droits d'enregistrement réduits | ||||||||||||
| Parkings | - | 9 000 m² HT HD | 3 % HT du prix de vente HDE, à la charge de l'acquéreur, payables à la signature de l'acte | TVA + Droits d'enregistrement réduits | ||||||||||||||
| Total Cellule LOT A | Commerce | 156,19 | Immédiate | 3 % HT du prix de vente HDE, à la charge de l'acquéreur, payables à la signature de l'acte | TVA + Droits d'enregistrement réduits | LOT A | ||||||||||||
| R+1 | Bureaux | 288,04 | 2 950 /m² HT HD | 36 m²/an HT | 3 % HT du prix de vente HDE, à la charge de l'acquéreur, payables à la signature de l'acte | TVA + Droits d'enregistrement réduits | ||||||||||||
| Terrasse | Terrasse | 19 | 1 600 m² HT HD | 3 % HT du prix de vente HDE, à la charge de l'acquéreur, payables à la signature de l'acte | TVA + Droits d'enregistrement réduits | |||||||||||||
| Parkings | - | 9 000 m² HT HD | 3 % HT du prix de vente HDE, à la charge de l'acquéreur, payables à la signature de l'acte | TVA + Droits d'enregistrement réduits | ||||||||||||||
| Total Cellule LOT E | Bureaux | 288,04 | Immédiate | 3 % HT du prix de vente HDE, à la charge de l'acquéreur, payables à la signature de l'acte | TVA + Droits d'enregistrement réduits | LOT E | ||||||||||||
| R+1 | Bureaux | 140,27 | 2 950 /m² HT HD | 36 m²/an HT | 3 % HT du prix de vente HDE, à la charge de l'acquéreur, payables à la signature de l'acte | TVA + Droits d'enregistrement réduits | ||||||||||||
| Parkings | - | 9 000 m² HT HD | 3 % HT du prix de vente HDE, à la charge de l'acquéreur, payables à la signature de l'acte | TVA + Droits d'enregistrement réduits | ||||||||||||||
| Total Cellule LOT F | Bureaux | 140,27 | Immédiate | 3 % HT du prix de vente HDE, à la charge de l'acquéreur, payables à la signature de l'acte | TVA + Droits d'enregistrement réduits | LOT F | ||||||||||||
| Total | 603,5 m² | |||||||||||||||||
| 10 4 3 | ||||||||||||||||||




















































































