Ref : 1428376-0V
Vente Bureau
BUREAUX - A VENDRE - LIMONEST - 434 m² - Stationnements nombreux
Limonest (69760)
Prix : 802 900 €
Surface 434 m²
Description du bien
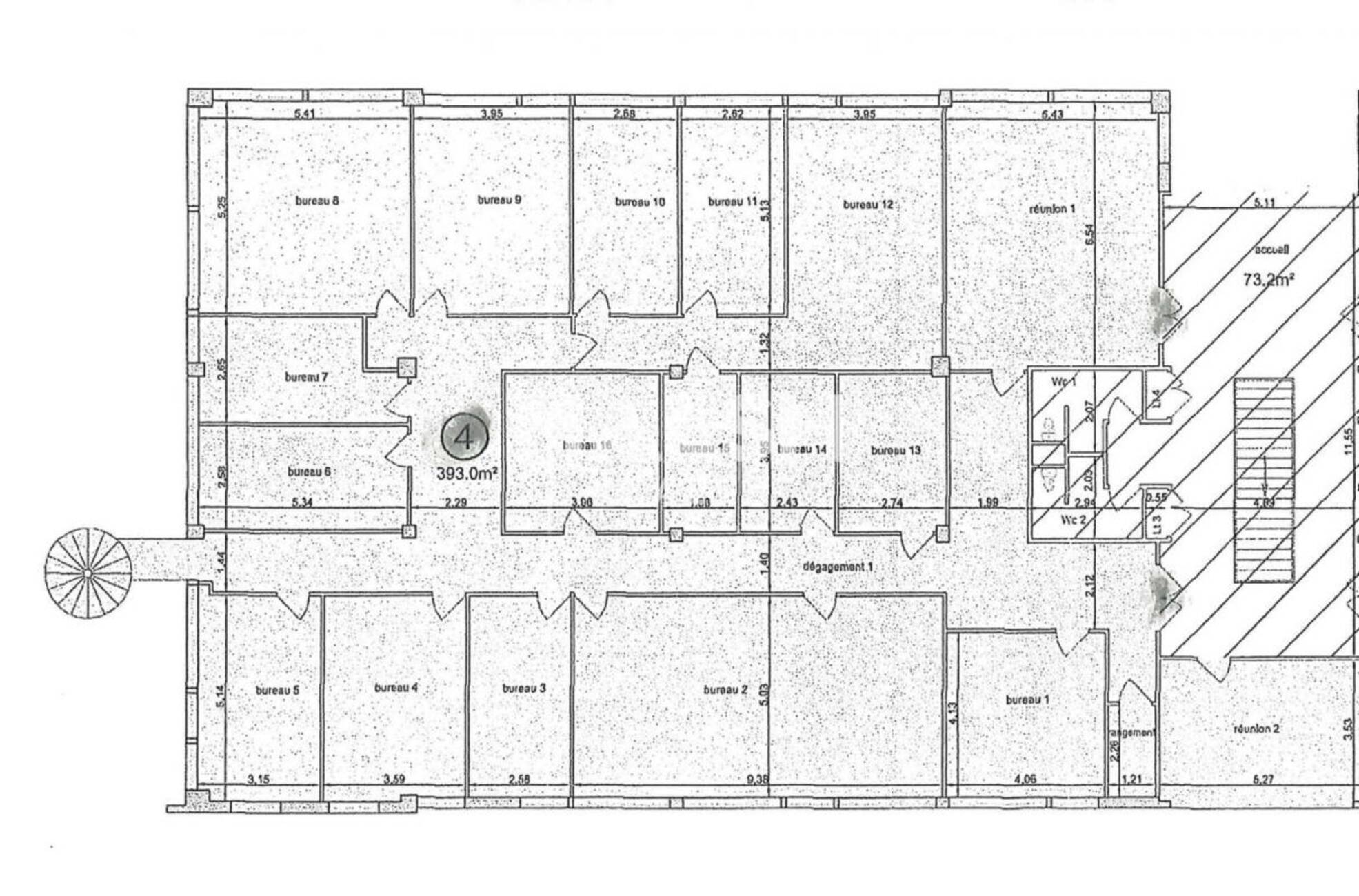
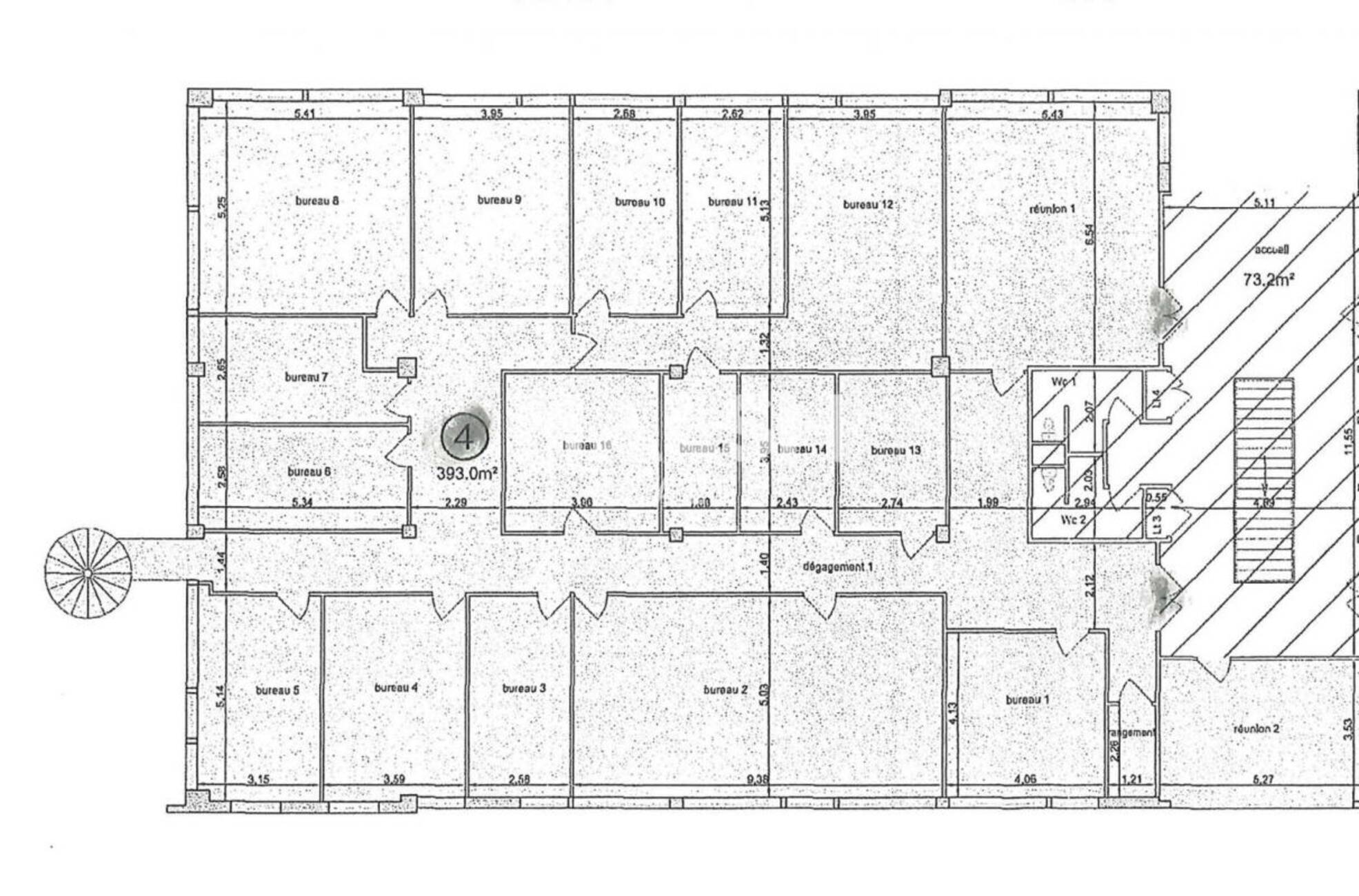
MALSH Realty vous propose à la vente des bureaux d'une surface de 434 m², idéalement situés à Limonest à proximité immédiate de l'A6, au sein d'un parc tertiaire sécurisé et arboré. Ces locaux cloisonnés offrent un cadre de travail confortable et fonctionnel. Le bien dispose en outre de 14 places de stationnement extérieures privatives
Prestations du bien
- Composition :
- 2 portes palières
- Bureaux individuels
- Grands bureaux
- Salle de réunion
- Espace kitchenette
- Local technique & archive
- Prestations :
- Situés dans un immeuble tertiaire sécurisé et arboré
- Bureaux cloisonnés en amovible
- Climatisation réversible
- Faux plafond
- Dalles moquette au sol
- Luminaires encastrés
- Fenêtres doubles vitrages et stores
- Câblage RJ45 et fibre optique
- Baie de brassage
- Interphone
- Divisibilité à étudier
- Travaux de rafraichissement à prévoir
Informations financières
- Taxe foncière : 7 900 €
Ce local professionnel vous est présenté par
Vous souhaitez nous joindre ?
Surfaces des locaux
| Étage | Bâtiment | Type | Surfaces | Disponibilité | Loyer | Charges | Honoraires | Fiscal | Bail | Révision annuelle | Prix | Charges | Honoraires | Fiscal | Paiement Loyer | lot | Coworking | |
|---|---|---|---|---|---|---|---|---|---|---|---|---|---|---|---|---|---|---|
| R+1 | Bureaux | 434 | Immédiate | 1 850 HDE/m² | 16 000 an HT | 5 % HT du montant de la vente HDE, à la charge de l'acquéreur | Droits d'enregistrement | |||||||||||
| Parkings | - | 5 % HT du montant de la vente HDE, à la charge de l'acquéreur | Droits d'enregistrement | |||||||||||||||
| Total | 434 m² | |||||||||||||||||
| 14 extérieur | ||||||||||||||||||
Localisation et accessibilité
- Bus: Lignes 3, 10, 21 et 61
- SCNF: Dardilly-Le-Jubin (Gare SNCF)
- Autoroute: A 89 (Entrée Techlid-Pôle Économique), A 6 (Entrée), A 6 (Sortie), A 89 (Sortie Techlid-Pôle Économique)
Ces articles peuvent vous intéresser
| Étage | Bâtiment | Type | Surfaces | Disponibilité | Loyer | Charges | Honoraires | Fiscal | Bail | Révision annuelle | Prix | Charges | Honoraires | Fiscal | Paiement Loyer | lot | Coworking | |
|---|---|---|---|---|---|---|---|---|---|---|---|---|---|---|---|---|---|---|
| R+1 | Bureaux | 434 | Immédiate | 1 850 HDE/m² | 16 000 an HT | 5 % HT du montant de la vente HDE, à la charge de l'acquéreur | Droits d'enregistrement | |||||||||||
| Parkings | - | 5 % HT du montant de la vente HDE, à la charge de l'acquéreur | Droits d'enregistrement | |||||||||||||||
| Total | 434 m² | |||||||||||||||||
| 14 extérieur | ||||||||||||||||||












































































