Ref : 1364642-0
Vente Bureau
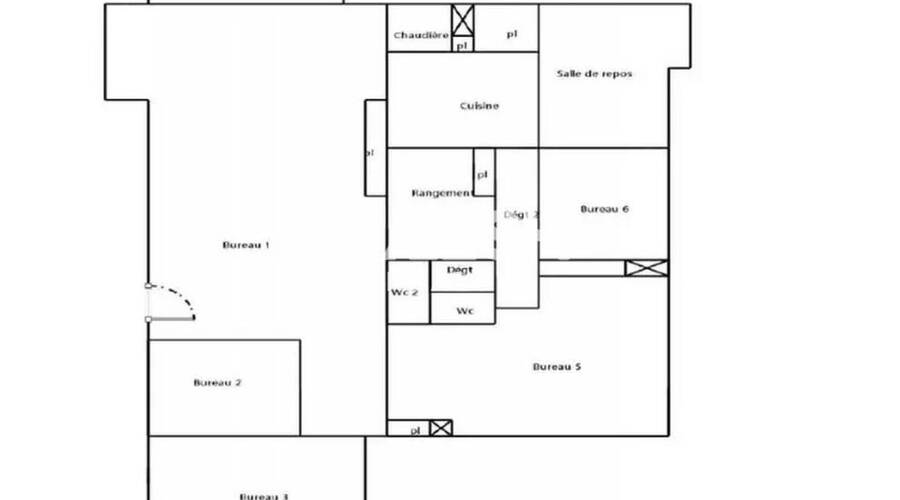
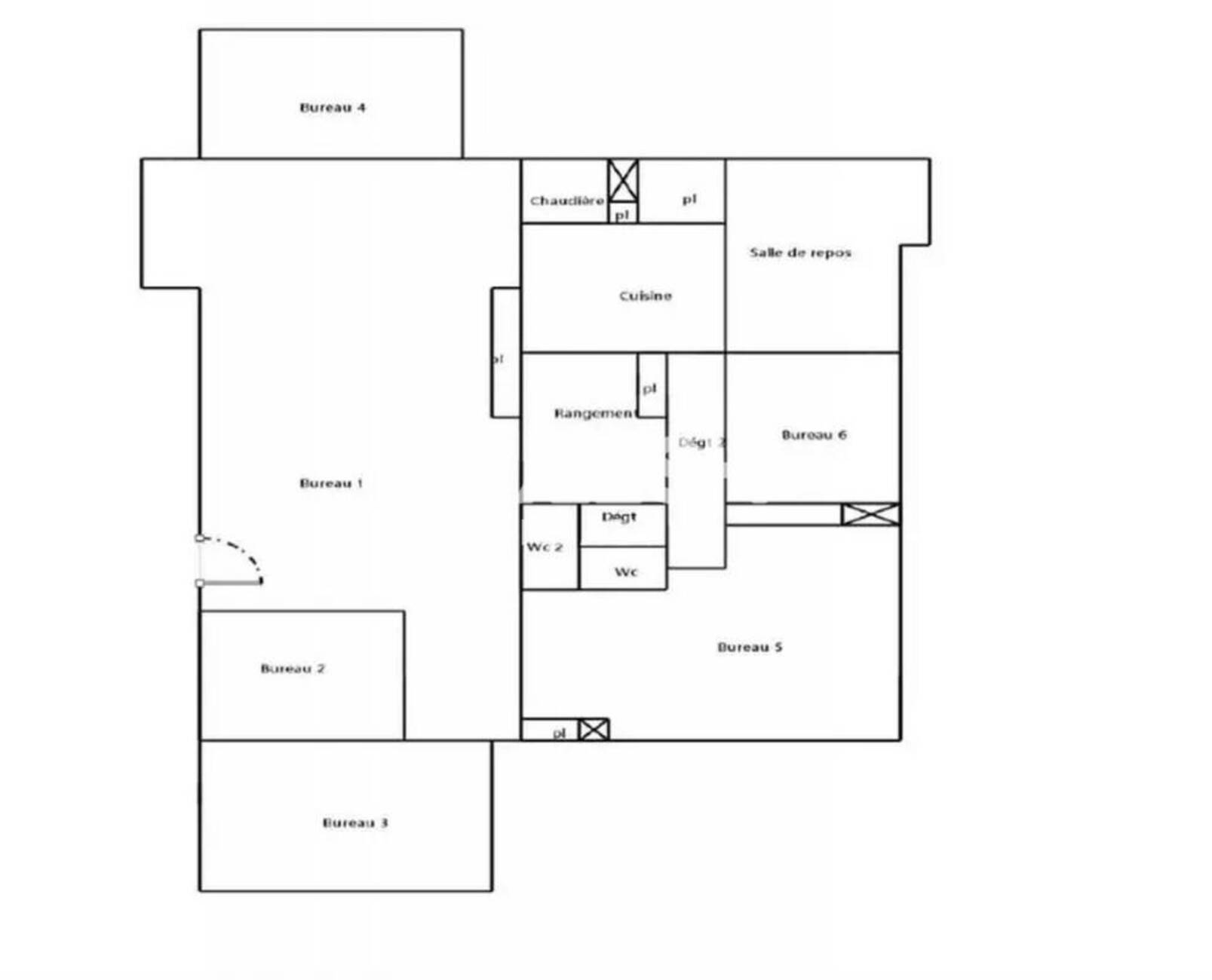
Vente ou Location Bureaux - Lyon 3ème (69003) - 163 m²
Lyon 3 (69003)
Prix : 490 200 €
Surface 163 m²
Description du bien
MALSH Realty vous propose à la vente ou à la location, au pied d'une résidence calme à proximité immédiate de la gare de la Part Dieu, des bureaux d'une surface d'environ 163,40 m² avec ses 2 stationnements extérieurs privatifs.
Prestations du bien
- Cloisonnement vitré sur allège
- Sol moquette
- Faux plafond dalles avec pavés néons
- Climatisation réversible
- Baie de brassage, réseau déployé, Fibre
- Chauffage individuel gaz
- Volets électriques roulants sur l'ensemble des surfaces vitrées
- Locaux traversants
- Entrée directe dans le local
- Grand open space
- 4 bureaux fermés
- Kitchenette
- Sanitaires privatifs
- 2 caves en sous-sol
Informations financières
- Charges minimales : 198 €
- Bail : commercial 3-6-9 ans
- Taxe foncière : 2 783 €
- Dépôt de garantie : 3 mois de loyer HT/HC
Diagnostic énergétiques
Diagnostic de performance énergétique
E 312
Indice d'émission de gaz à effet de serre
F 56
Logement très performant
Logement extrêmement consommateur d'énergie
Peu d'émission de GES
Emissions de GES très importantes
Ce local professionnel vous est présenté par
Vous souhaitez nous joindre ?
Surfaces des locaux
| Étage | Bâtiment | Type | Surfaces | Disponibilité | Loyer | Charges | Honoraires | Fiscal | Bail | Révision annuelle | Prix | Charges | Honoraires | Fiscal | Paiement Loyer | lot | Coworking | |
|---|---|---|---|---|---|---|---|---|---|---|---|---|---|---|---|---|---|---|
| RDC | Bureaux | 163,4 | Immédiate | 165 HT/HC/m²/an | 2 370 /an HT | 15% HT d'un an de loyer HT à la charge du preneur, payables à la signature du bail | T.V.A. (20%) | commercial 3-6-9 ans | ILAT Indice des Loyers des Activités Tertiaires | 3 000 m² HD | 2,5 % HT du montant de la vente HDE, à la charge de l'acquéreur | Droits d'enregistrement | Trimestriel d'avance | |||||
| Parkings | - | Immédiate | 1 500 HT/HC/place/an | 15% HT d'un an de loyer HT à la charge du preneur, payables à la signature du bail | T.V.A. (20%) | commercial 3-6-9 ans | ILAT Indice des Loyers des Activités Tertiaires | 15 000 m² HD | 2,5 % HT du montant de la vente HDE, à la charge de l'acquéreur | Droits d'enregistrement | Trimestriel d'avance | |||||||
| Total | 163,4 m² | |||||||||||||||||
| 2 | ||||||||||||||||||
Localisation et accessibilité
- Bus: Lignes 25, 27, 38 et 70
- SCNF: Lyon-Part-Dieu (France)
- Metro: Ligne B - Gare Part Dieu
- Tramway: Lignes T1, T3 et T4
Ces articles peuvent vous intéresser
| Étage | Bâtiment | Type | Surfaces | Disponibilité | Loyer | Charges | Honoraires | Fiscal | Bail | Révision annuelle | Prix | Charges | Honoraires | Fiscal | Paiement Loyer | lot | Coworking | |
|---|---|---|---|---|---|---|---|---|---|---|---|---|---|---|---|---|---|---|
| RDC | Bureaux | 163,4 | Immédiate | 165 HT/HC/m²/an | 2 370 /an HT | 15% HT d'un an de loyer HT à la charge du preneur, payables à la signature du bail | T.V.A. (20%) | commercial 3-6-9 ans | ILAT Indice des Loyers des Activités Tertiaires | 3 000 m² HD | 2,5 % HT du montant de la vente HDE, à la charge de l'acquéreur | Droits d'enregistrement | Trimestriel d'avance | |||||
| Parkings | - | Immédiate | 1 500 HT/HC/place/an | 15% HT d'un an de loyer HT à la charge du preneur, payables à la signature du bail | T.V.A. (20%) | commercial 3-6-9 ans | ILAT Indice des Loyers des Activités Tertiaires | 15 000 m² HD | 2,5 % HT du montant de la vente HDE, à la charge de l'acquéreur | Droits d'enregistrement | Trimestriel d'avance | |||||||
| Total | 163,4 m² | |||||||||||||||||
| 2 | ||||||||||||||||||




















































