Ref : 1233463-0
Location Local d'activités
Vente ou Location Local d'Activités neuf - Trevoux (01600) - 761 m² divisibles à partir de 303 m²
Trévoux (01600)
Loyer : 69 600 € / an
Surface 760 m²
Divisible dès 303 m²
Description du bien
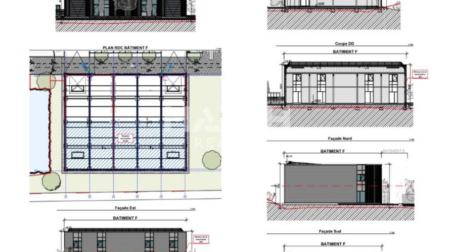
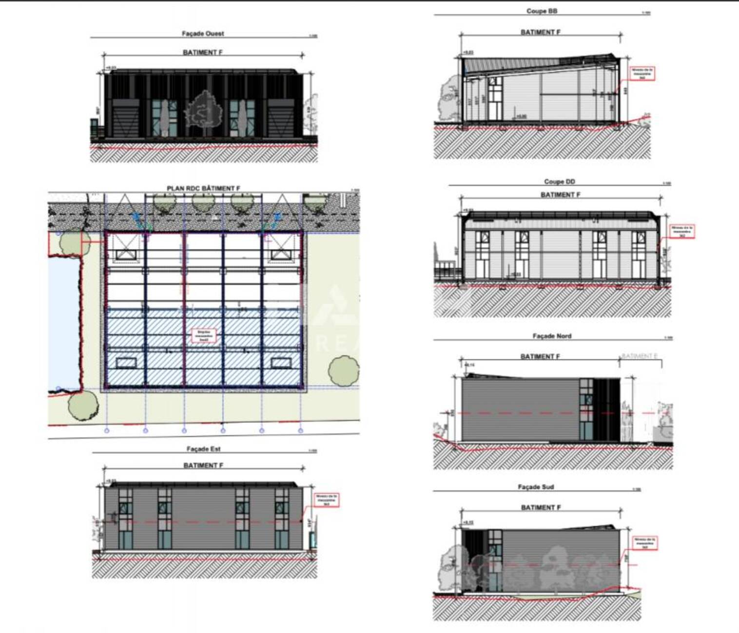
MALSH Realty vous propose à la vente ou à la location à 10 min de l'accès autoroutier de l'A6 à Trévoux au sein d'un nouveau parc d'activités, un local d'activités neuf d'une surface totale d'environ 761 m² comprenant 511 m² au RDC et 250 m² en mezzanine. Ce bâtiment est divisible en 2 lots à partir de 303 m². Il dispose de prestations modernes, d'une hauteur importante de 7 m sous plafond, de deux portes sectionnelles, d'une dalle quartz, d'un bardage isolé...
Local livré brut, fluides en attente. L'électricité est livré avec compteur et consuel réglé et portes sectionnelles raccordées.
A visiter rapidement !
Prestations du bien
- Accès de plain-pied / Accès semi
- Cour de déchargement pour une logistique facilitée
- Accès sécurisé
- Portail électrique à l'entrée du parc
- 2 portes sectionnelles électriques (4 m x 4 m) -> 1 porte par lot
- Porte piéton
- 6 places de parking (4 parkings pour le lot 1 et 2 parkings pour le lot 2)
- Structure : bardage double peau + Mur Rideaux
- Hauteur sous plafond de 7 mètres
- Couverture : bac acier isolé
- Isolation panneaux sandwich
- Dalle quartz
- Puits de lumière
- Trappe de désenfumage
- Alimentation électrique : possibilité de triphasé
- L'électricité sera livré avec compteur et consuel réglé et portes sectionnelles raccordées.
- Locaux bruts, à aménager
Informations financières
- Charges minimales : 150 €
- Bail : commercial 3-6-9 ans
- Taxe foncière : 1 500 €
- Informations location :
Conditions particulières à la location : Frais de rédaction de bail notarié à prévoir, à la charge du preneur
- Dépôt de garantie : 2 mois de loyer HT/HC
Ce local professionnel vous est présenté par
Vous souhaitez nous joindre ?
Surfaces des locaux
| Étage | Bâtiment | Type | Surfaces | Disponibilité | Loyer | Charges | Honoraires | Fiscal | Bail | Révision annuelle | Prix | Charges | Honoraires | Fiscal | Paiement Loyer | lot | Coworking | |
|---|---|---|---|---|---|---|---|---|---|---|---|---|---|---|---|---|---|---|
| Mezzanine | 150 | 15 % HT du loyer annuel HT/HC, à la charge du preneur, payables à la signature du bail | T.V.A. (20%) | ILAT Indice des Loyers des Activités Tertiaires | 5 % HT du prix de vente HT, à la charge de l'acquéreur, payables à la signature de l'acte | TVA | Trimestriel d'avance | |||||||||||
| RDC | Activités | 307,61 | 15 % HT du loyer annuel HT/HC, à la charge du preneur, payables à la signature du bail | T.V.A. (20%) | ILAT Indice des Loyers des Activités Tertiaires | 5 % HT du prix de vente HT, à la charge de l'acquéreur, payables à la signature de l'acte | TVA | Trimestriel d'avance | ||||||||||
| Total Cellule 1 | Activités | 457,61 | Immédiate | 91,78 HT/HC/m²/an | 1 800 HT/an | 15 % HT du loyer annuel HT/HC, à la charge du preneur, payables à la signature du bail | T.V.A. (20%) | commercial 3-6-9 ans | ILAT Indice des Loyers des Activités Tertiaires | 1 400 HT/m² | 5 % HT du prix de vente HT, à la charge de l'acquéreur, payables à la signature de l'acte | TVA | Trimestriel d'avance | 1 | ||||
| Mezzanine | 100 | 15 % HT du loyer annuel HT/HC, à la charge du preneur, payables à la signature du bail | T.V.A. (20%) | ILAT Indice des Loyers des Activités Tertiaires | 5 % HT du prix de vente HT, à la charge de l'acquéreur, payables à la signature de l'acte | TVA | Trimestriel d'avance | |||||||||||
| RDC | Activités | 203,35 | 15 % HT du loyer annuel HT/HC, à la charge du preneur, payables à la signature du bail | T.V.A. (20%) | ILAT Indice des Loyers des Activités Tertiaires | 5 % HT du prix de vente HT, à la charge de l'acquéreur, payables à la signature de l'acte | TVA | Trimestriel d'avance | ||||||||||
| Total Cellule 2 | Activités | 303,35 | Immédiate | 90,98 HT/HC/m²/an | 1 800 HT/an | 15 % HT du loyer annuel HT/HC, à la charge du preneur, payables à la signature du bail | T.V.A. (20%) | commercial 3-6-9 ans | ILAT Indice des Loyers des Activités Tertiaires | 1 400 HT/m² | 5 % HT du prix de vente HT, à la charge de l'acquéreur, payables à la signature de l'acte | TVA | Trimestriel d'avance | 2 | ||||
| Total | 760,96 m² |
Localisation et accessibilité
- Bus: Rochetaillée (BUS-40, BUS-70), Couzon (BUS-43)
- SCNF: Couzon-au-Mont-d'Or (France)
- Autoroute: A6 - A46
Ces biens pourraient vous intéresser
Ces articles peuvent vous intéresser
| Étage | Bâtiment | Type | Surfaces | Disponibilité | Loyer | Charges | Honoraires | Fiscal | Bail | Révision annuelle | Prix | Charges | Honoraires | Fiscal | Paiement Loyer | lot | Coworking | |
|---|---|---|---|---|---|---|---|---|---|---|---|---|---|---|---|---|---|---|
| Mezzanine | 150 | 15 % HT du loyer annuel HT/HC, à la charge du preneur, payables à la signature du bail | T.V.A. (20%) | ILAT Indice des Loyers des Activités Tertiaires | 5 % HT du prix de vente HT, à la charge de l'acquéreur, payables à la signature de l'acte | TVA | Trimestriel d'avance | |||||||||||
| RDC | Activités | 307,61 | 15 % HT du loyer annuel HT/HC, à la charge du preneur, payables à la signature du bail | T.V.A. (20%) | ILAT Indice des Loyers des Activités Tertiaires | 5 % HT du prix de vente HT, à la charge de l'acquéreur, payables à la signature de l'acte | TVA | Trimestriel d'avance | ||||||||||
| Total Cellule 1 | Activités | 457,61 | Immédiate | 91,78 HT/HC/m²/an | 1 800 HT/an | 15 % HT du loyer annuel HT/HC, à la charge du preneur, payables à la signature du bail | T.V.A. (20%) | commercial 3-6-9 ans | ILAT Indice des Loyers des Activités Tertiaires | 1 400 HT/m² | 5 % HT du prix de vente HT, à la charge de l'acquéreur, payables à la signature de l'acte | TVA | Trimestriel d'avance | 1 | ||||
| Mezzanine | 100 | 15 % HT du loyer annuel HT/HC, à la charge du preneur, payables à la signature du bail | T.V.A. (20%) | ILAT Indice des Loyers des Activités Tertiaires | 5 % HT du prix de vente HT, à la charge de l'acquéreur, payables à la signature de l'acte | TVA | Trimestriel d'avance | |||||||||||
| RDC | Activités | 203,35 | 15 % HT du loyer annuel HT/HC, à la charge du preneur, payables à la signature du bail | T.V.A. (20%) | ILAT Indice des Loyers des Activités Tertiaires | 5 % HT du prix de vente HT, à la charge de l'acquéreur, payables à la signature de l'acte | TVA | Trimestriel d'avance | ||||||||||
| Total Cellule 2 | Activités | 303,35 | Immédiate | 90,98 HT/HC/m²/an | 1 800 HT/an | 15 % HT du loyer annuel HT/HC, à la charge du preneur, payables à la signature du bail | T.V.A. (20%) | commercial 3-6-9 ans | ILAT Indice des Loyers des Activités Tertiaires | 1 400 HT/m² | 5 % HT du prix de vente HT, à la charge de l'acquéreur, payables à la signature de l'acte | TVA | Trimestriel d'avance | 2 | ||||
| Total | 760,96 m² |





































